EasyManua.ls Logo

Frick SGCH-3519 - Page 13

Frick SGCH-3519
46 pages
Print Icon
To Next Page IconTo Next Page
To Next Page IconTo Next Page
To Previous Page IconTo Previous Page
To Previous Page IconTo Previous Page
Loading...
070.650-IOM (JUL 19)
Page 13
SGC/SGX ROTARY SCREW COMPRESSOR
INSTALLATION
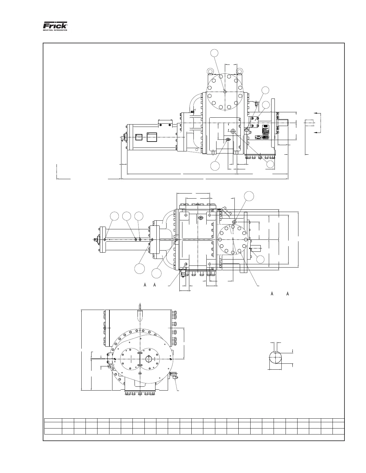
Figure 4: Port locations, SGC 2313/2317 (continued)
289.1 [11.38]
578.1 [22.76]
100.1 [3.94]
243.2 [9.58]
511 [20.12]
255.5 [10.06]
259.1 [10.20]
H
532.7 [20.97]
392.4 [15.45]
101.9 [4.01]
G
F
100.1 [3.94]
33 [1.30]
33 [1.30]
B
A
62 [2.44]
D
E
Y
X
317.5 [12.50]
314.2 [12.37]
184.2 [7.25]
Ă317.5 [Ă12.50]
114.3 [4.50]
177.8 [7.00]
106 [4.17]
8.4 [.33]
K
326.9 [12.87]
74.6 [2.94]
Q
SC-9
SC-13
SC-13
SC-13
SC-13
SC-11
2.499
2.500
SC-7
SC-8
Ø
63.47
63.50
2.139
2.146
54.33
54.51
.627
.625
15.93
15.88
[
[
]
]
[ ]
SM-1
SL-1
SV-1
TE-1
BEFORE DISASSEMBLY.
CAUSE INJURY DUE TO SPRING
TENSION RELEASE.
HIGH SPRING LOAD.
IMPROPER DISASSEMBLY MAY
CONSULT SERVICE MANUAL
CYLINDER ASSEMBLY UNDER
CAUTION
3. REFER TO INSTALLATION OPERATION AND
MAINTENANCE MANUAL FOR ADDITIONAL
THIS EQUIPMENT HAS BEEN PRESSURIZED
WITH NITROGEN GAS. TEMPORARY VALVES
1. RELIEVE PRESSURE PRIOR TO OPENING
LINES OR MAKING FIELD CONNECTIONS.
2. REMOVE CHARGING VALVES OR GAUGES
ESCAPING GAS MAY CAUSE INJURY
PRIOR TO PRESSURIZING SYSTEM.
INFORMATION.
CAUTION
& GAUGES HAVE BEEN INSTALLED.
A
A
OUTLET END
J
DISTANCE REQUIRED
FOR CYLINDER
REMOVAL
177.8 [7.00] MINI-
MUM DISTANCE RE-
QUIRED FOR SHAFT
SEAL REMOVAL
MOUNTING HOLE 26 [ 1.024]
THRU 4 PL
MOUNTING FOOT
C
L
DISCHARGE FLANGE 6 IN. CLASS
300 ANSI FLANGE M20 X 2.5-6H
31.8 [1.25] DP 12 PL EQ SPACED
ON A 269.7 [ 10.62] B.C.
SLIDE STOP
LINEAR TRANSMITTER
VIEW A-A
Y
161.0
173.5
[6.83]
X
91.9
88.9
W
[6.26]
159
225
[3.62]
[6.34][8.86] [3.50]
V
6.6
U
635.0
[23.12]
587.2
T
317.5
293.6
[11.56]
S
[10.62]
269.7
330.2
[25.00][12.50][13.00]
R
M20x2.5-6H
P
203.2
152.4
[6.00]
323.9
330.2
[13.00]
Q
[8.00] [12.75]
M22x2.5-6H
[0.86]
21.8
[0.26]
N
381.0
[12.50]
317.5
M
[19.03]
483.4
564.9
L
[18.94]
481.1
506.5
K
[15.00][22.24][19.94]
J
[23.50]
596.9
673.1
HG
1061.0
1142.5
[41.77]
1737.1
1655.6
[65.18]
[26.50][44.98] [68.39]
[32.12]
815.8
841.2
[33.12]
F
91.2
64.0
[2.52]
E
[0.80]
20.3
39.4
D
[3.26]
82.8
123.4
C
[3.59][1.55][4.86]
B
[10.21]
259.3
340.9
A
246.9
165.6
[6.52]
[13.42][9.72]
[23.00]
584.2
635.0
[25.00]
SGC2317
SGC2313
COMPRESSOR
AA
[20.41]
518.5
600.0
[23.62]

Table of Contents

Related product manuals