EasyManua.ls Logo

Friedrich FPHFW09A3B - Indoor Units

Friedrich FPHFW09A3B
121 pages
Print Icon
To Next Page IconTo Next Page
To Next Page IconTo Next Page
To Previous Page IconTo Previous Page
To Previous Page IconTo Previous Page
Loading...
82 PB
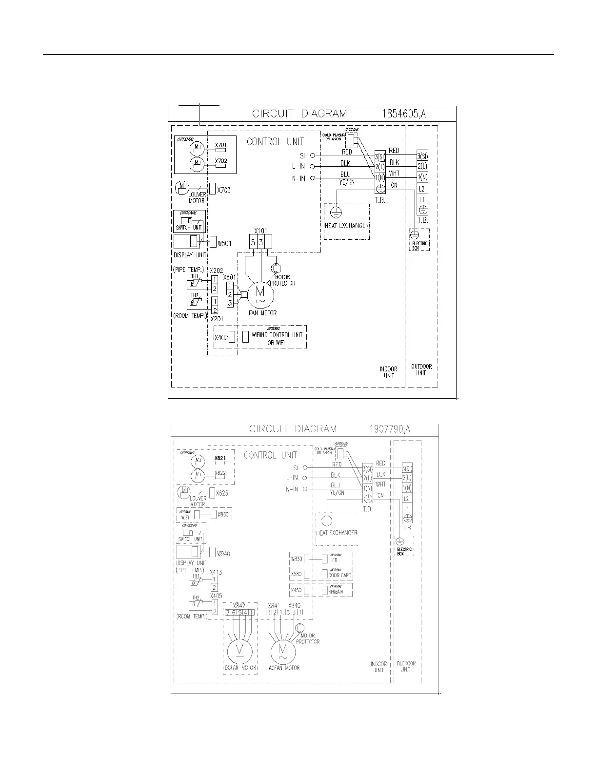
WIRING DIAGRAMS
Indoor Units
Figure 802
1907790
Figure 801
1854605, 1912241

Table of Contents

Other manuals for Friedrich FPHFW09A3B

Related product manuals