EasyManua.ls Logo

Friedrich FPHW091 - Page 83

Friedrich FPHW091
121 pages
Print Icon
To Next Page IconTo Next Page
To Next Page IconTo Next Page
To Previous Page IconTo Previous Page
To Previous Page IconTo Previous Page
Loading...
83 PB
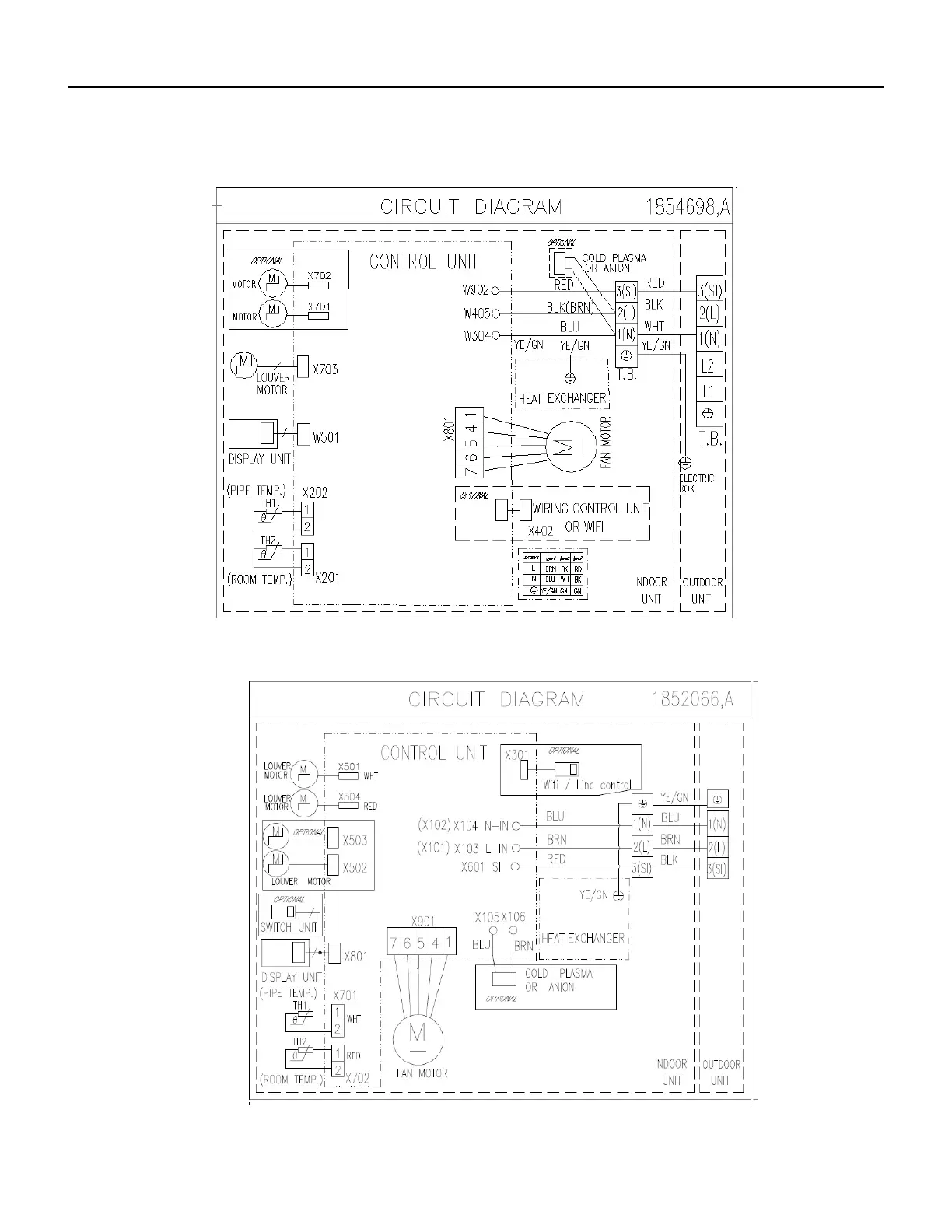
WIRING DIAGRAMS
Indoor Units
Figure 804
1852066
Figure 803
1854698

Table of Contents

Other manuals for Friedrich FPHW091

Related product manuals