EasyManua.ls Logo

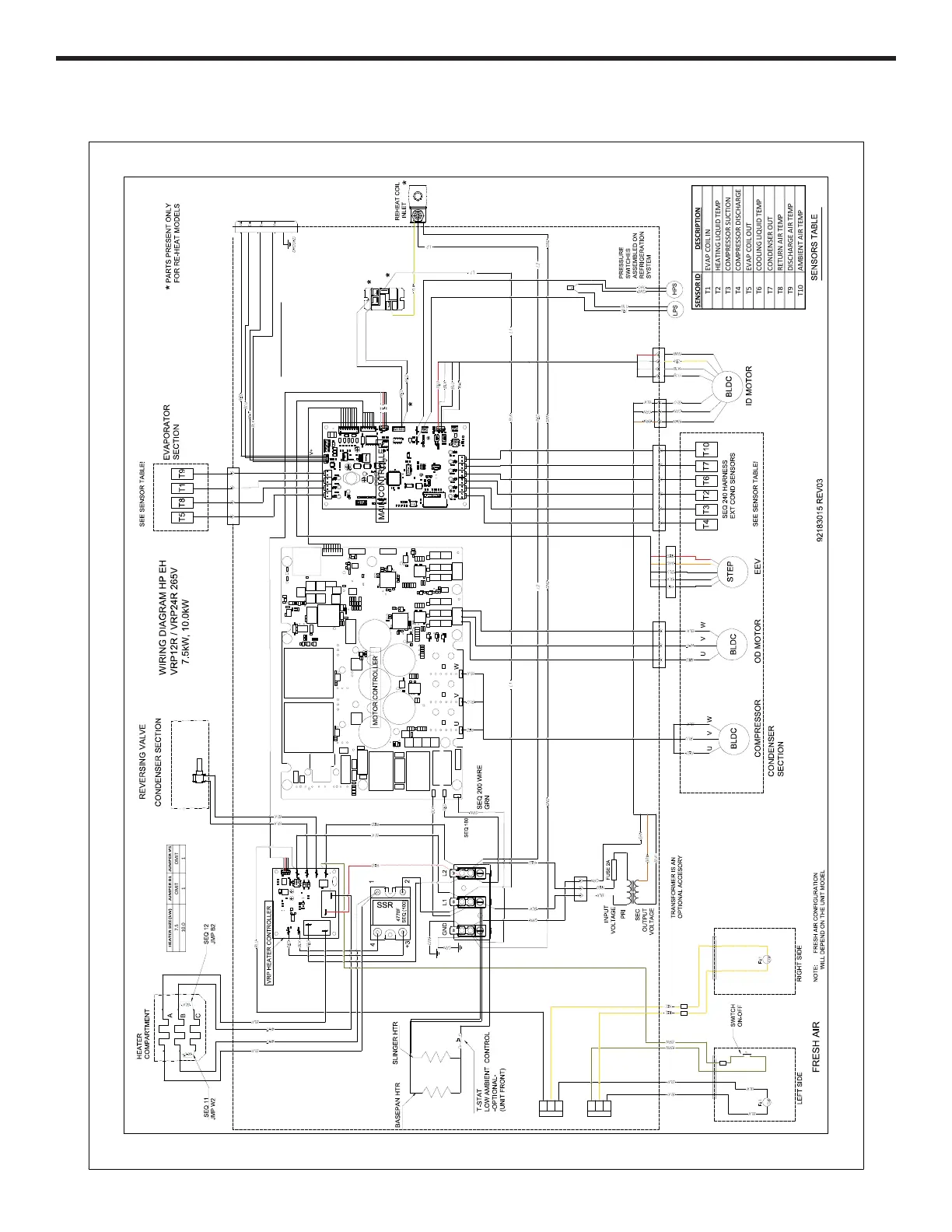
Friedrich VRP12K - Electrical Wiring Diagram - 265 V 7.5 & 10.0 kW

Friedrich VRP12K
41 pages
Print Icon
To Next Page IconTo Next Page
To Next Page IconTo Next Page
To Previous Page IconTo Previous Page
To Previous Page IconTo Previous Page
Loading...
32
Electrical Wiring Diagram - 265V 7.5 & 10.0 kW

Other manuals for Friedrich VRP12K

Related product manuals