EasyManua.ls Logo

Fuji Xerox ApeosPort-V 4070 - Page 647

Fuji Xerox ApeosPort-V 4070
719 pages
Print Icon
To Next Page IconTo Next Page
To Next Page IconTo Next Page
To Previous Page IconTo Previous Page
To Previous Page IconTo Previous Page
Loading...
HP-GL/2 Emulation
645
Appendix
16
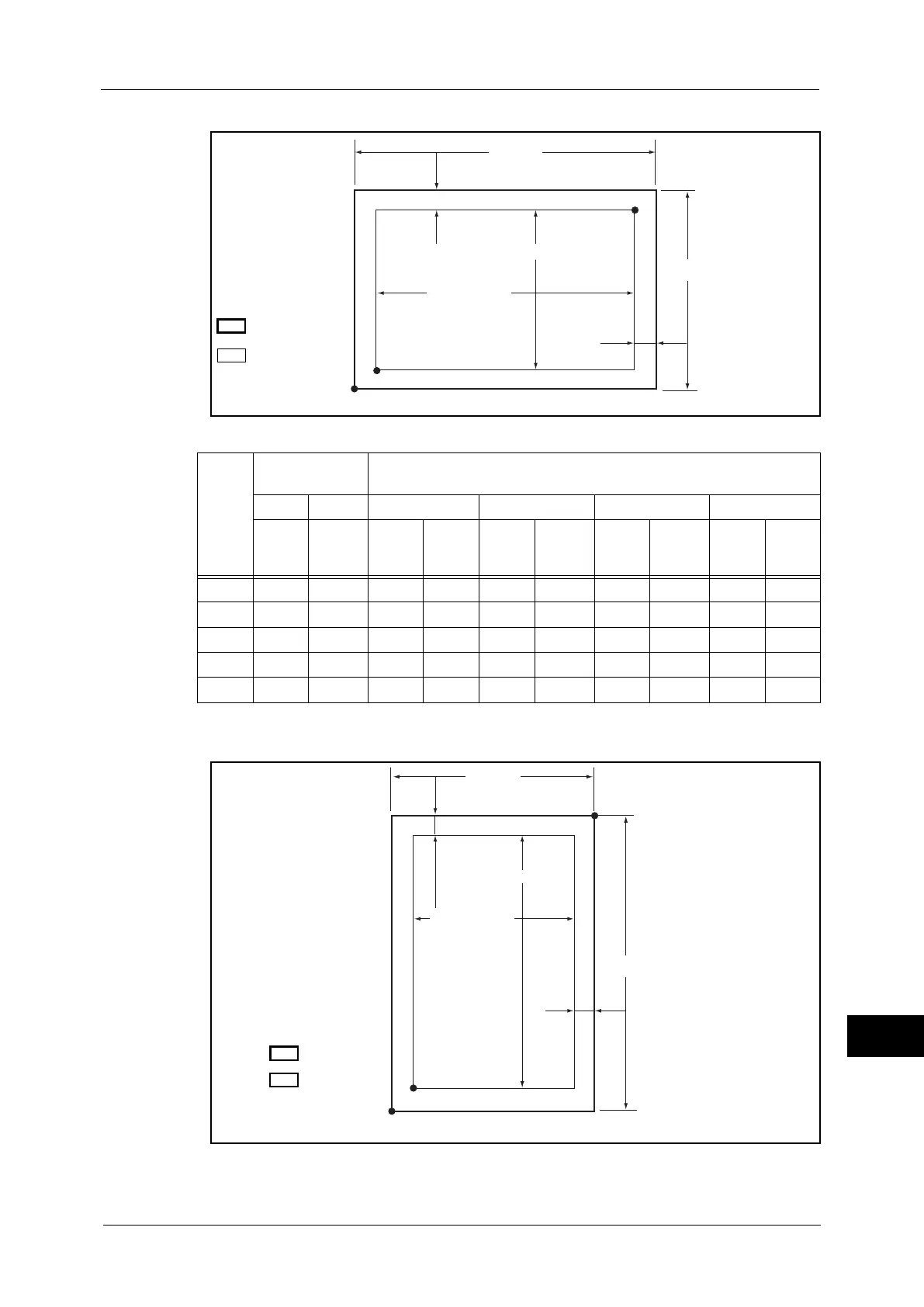
Note • The HP-GL emulation supports five paper sizes: A3, A5, A4, B4, and B5.
Paper
size
Paper Length
(1/7200 inch)
Coordinate Value (1/7200 inch)
X Axis Y Axis Margin Printable Area Top-right Edge Margin
Width Height Bottom
-
left X
Bottom
-
left Y
Long
Side
Short
Side
Top-
right X
Top-
right Y
XR YU
A3 84168 119052 1260 1260 81648 116532 82908 117792 1260 1260
A4 59508 84168 1260 1260 56988 81648 58248 82908 1260 1260
A5 41940 59508 1260 1260 39420 56988 40680 58248 1260 1260
B4 72828 103176 1260 1260 70308 100656 71568 101916 1260 1260
B5 51588 72828 1260 1260 49068 70308 50328 71568 1260 1260
Short-side
YU
Long-side
Bottom-left X, Bottom-left Y
(0, 0)
XR
Height
Printable Area
Top-right X, Top-right Y
Width
Physical paper size
Width
Short side
YU
(0, 0)
XR
Physical paper
size
Printable Area
Top-right X, Top-right Y
Long side
Height
Bottom-left X, Bottom-left Y

Table of Contents

Other manuals for Fuji Xerox ApeosPort-V 4070

Related product manuals