EasyManua.ls Logo

Fujitsu AOUH30LPAS1 - Dimensions; Models: ASUH30 LPAS and ASUH36 LPAS

Fujitsu AOUH30LPAS1
90 pages
Print Icon
To Next Page IconTo Next Page
To Next Page IconTo Next Page
To Previous Page IconTo Previous Page
To Previous Page IconTo Previous Page
Loading...
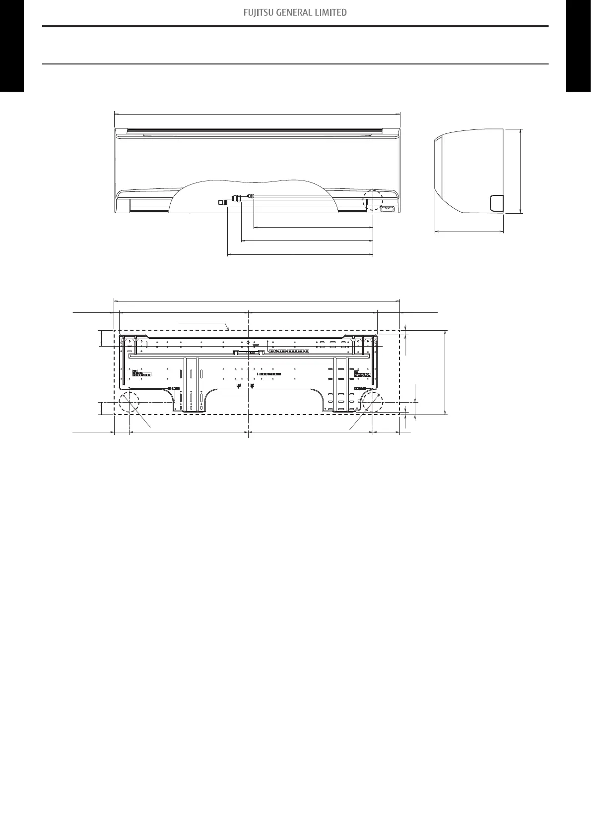
2. Dimensions
2-1. Models: ASUH30LPAS and ASUH36LPAS
Unit: in (mm)
Outline of unit
20-1/2 (520)
3-9/16 (90)
13/16 (20)
2-1/2 (64)
18-7/8 (479)2-6/16 (61)
4-1/4
(108)19-6/8 (502)
20-1/2 (520)
1-15/16 (50)
1-15/16
(50)
7/16 (11)
13-6/16 (340)
ø80
ø80
13-6/16
(340)
11 (280)
10/16
(16)
45-1/4 (1,150)
19 (483)
21-7/16 (544)
22-1/16 (560)
45-1/4 (1,150)
- 4 -
2-1. Models: ASUH30LPAS and ASUH36LPAS
2. Dimensions
WALL MOUNTED
ASUH30-36LPAS
WALL MOUNTED
ASUH30-36LPAS

Table of Contents

Other manuals for Fujitsu AOUH30LPAS1

Related product manuals