EasyManua.ls Logo

Fujitsu AR*9LUAB - Sound Level Check Point

Fujitsu AR*9LUAB
96 pages
Print Icon
To Next Page IconTo Next Page
To Next Page IconTo Next Page
To Previous Page IconTo Previous Page
To Previous Page IconTo Previous Page
Loading...
- (02 - 13) -
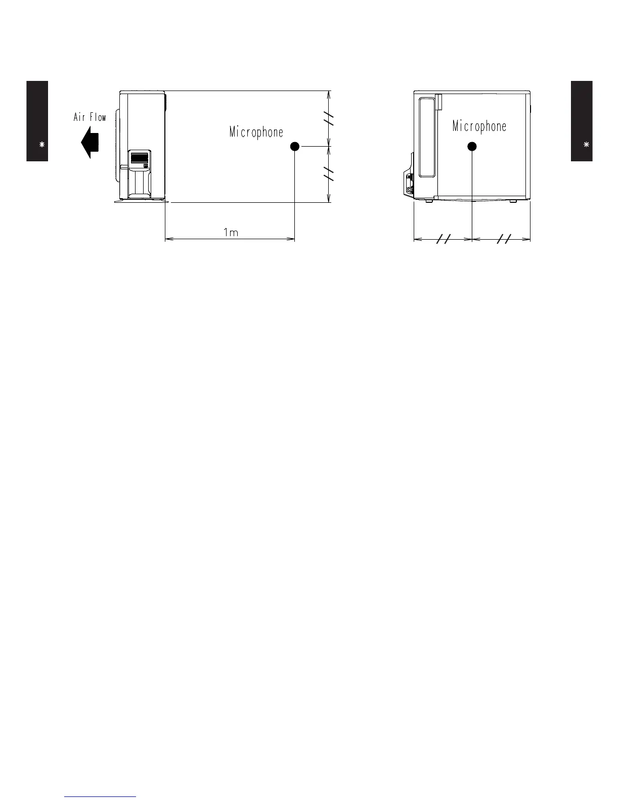
OUTDOOR UNIT
AO 18-24L2
OUTDOOR UNIT
AO 18-24L2
8-2. SOUND LEVEL CHECK POINT

Other manuals for Fujitsu AR*9LUAB

Related product manuals