EasyManua.ls Logo

Fujitsu ASYG12KMCF - Page 50

Fujitsu ASYG12KMCF
567 pages
To Next Page IconTo Next Page
To Next Page IconTo Next Page
To Previous Page IconTo Previous Page
To Previous Page IconTo Previous Page
Loading...
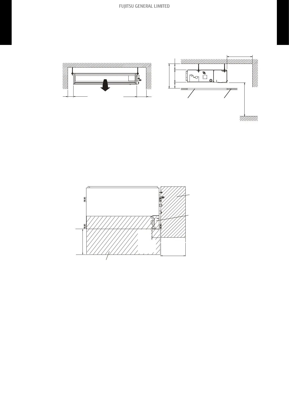
Installation space requirement
Provide sufficient installation space for product safety.
In ceiling-concealed installations:
Left
side
Strong and durable ceiling
Indoor unit
Right
side
150
or more
400
or more
Service access Ceiling
2500 or more
(When no ceiling)
Floor
240 or more
20 or more
20 or more
300 or more
Unit: mm
Maintenance space requirement
Provide sufficient maintenance space for efficient maintenance.
NOTE: Do not place any wiring or illumination in the maintenance space, as they will impede ser-
vice.
Unit: mm
Maintenance access
Unit
Control box
Maintenance space
400
or more
300
or more
100
or more
- 42 -
4-3. Slim duct type
4. Dimensions
4-5 UNIT
MULTI-SPLIT TYPE
4-5 UNIT
MULTI-SPLIT TYPE

Table of Contents

Other manuals for Fujitsu ASYG12KMCF

Related product manuals