EasyManua.ls Logo

Fujitsu AUU42R - Switch Position

Fujitsu AUU42R
32 pages
Print Icon
To Next Page IconTo Next Page
To Next Page IconTo Next Page
To Previous Page IconTo Previous Page
To Previous Page IconTo Previous Page
Loading...
CASSETTE TYPE
AUU42R
CASSETTE TYPE
AUU42R
- (04 - 26) -
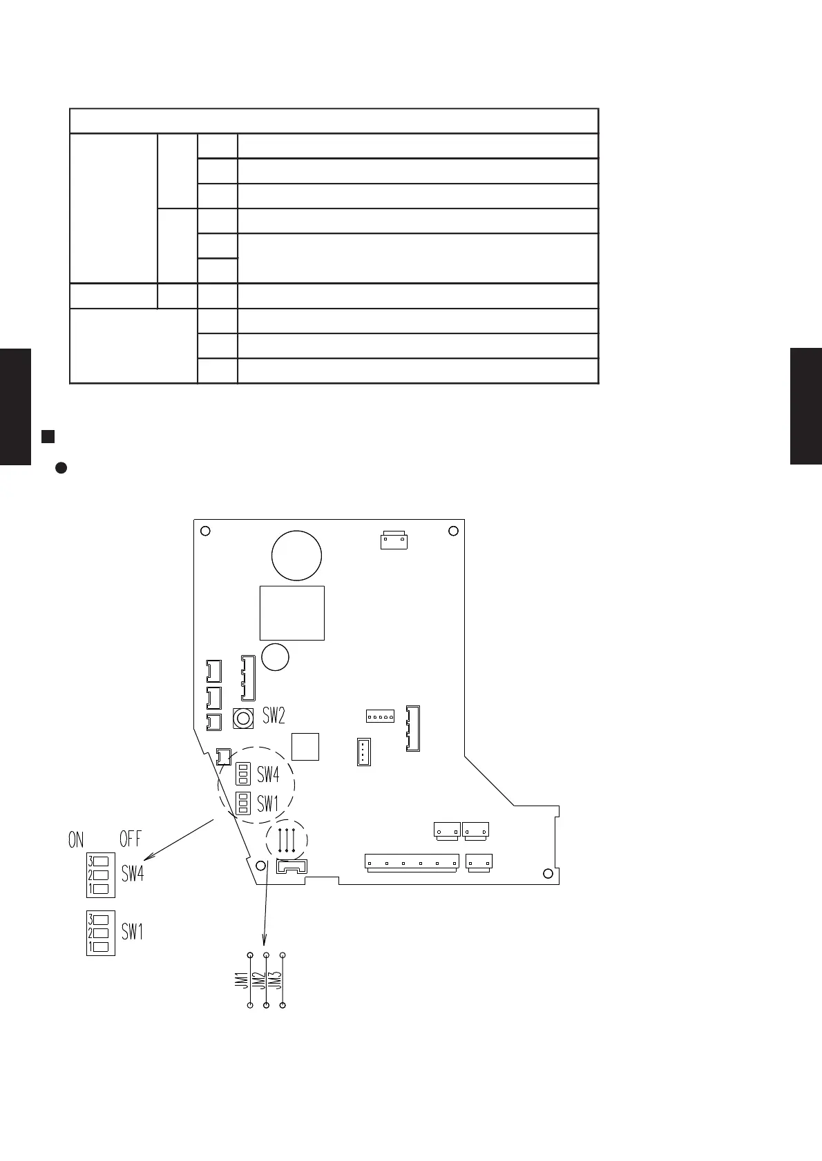
4-15. FUNCTION SETTING
4-15-1. INDOOR UNIT
Indoor unit control circuit board
SWITCH POSITION
Auto restart validity/invalidity
Room temperature correct coefficient
Room temperature correct coefficient
Forbidden
Indoor unit number setting
Forbidden
Forbidden
Forbidden
Ceiling height setting
INDOOR UNIT
DIP SW
3
1
JM3
Jumper Wire
2
3
JM1
JM2
Rotary SW
SW 2
SW 1
SW 4
1
2

Related product manuals