EasyManua.ls Logo

Fujitsu AUU9RLF - Indoor Unit Slim Duct ARU18 RLF

Fujitsu AUU9RLF
66 pages
Print Icon
To Next Page IconTo Next Page
To Next Page IconTo Next Page
To Previous Page IconTo Previous Page
To Previous Page IconTo Previous Page
Loading...
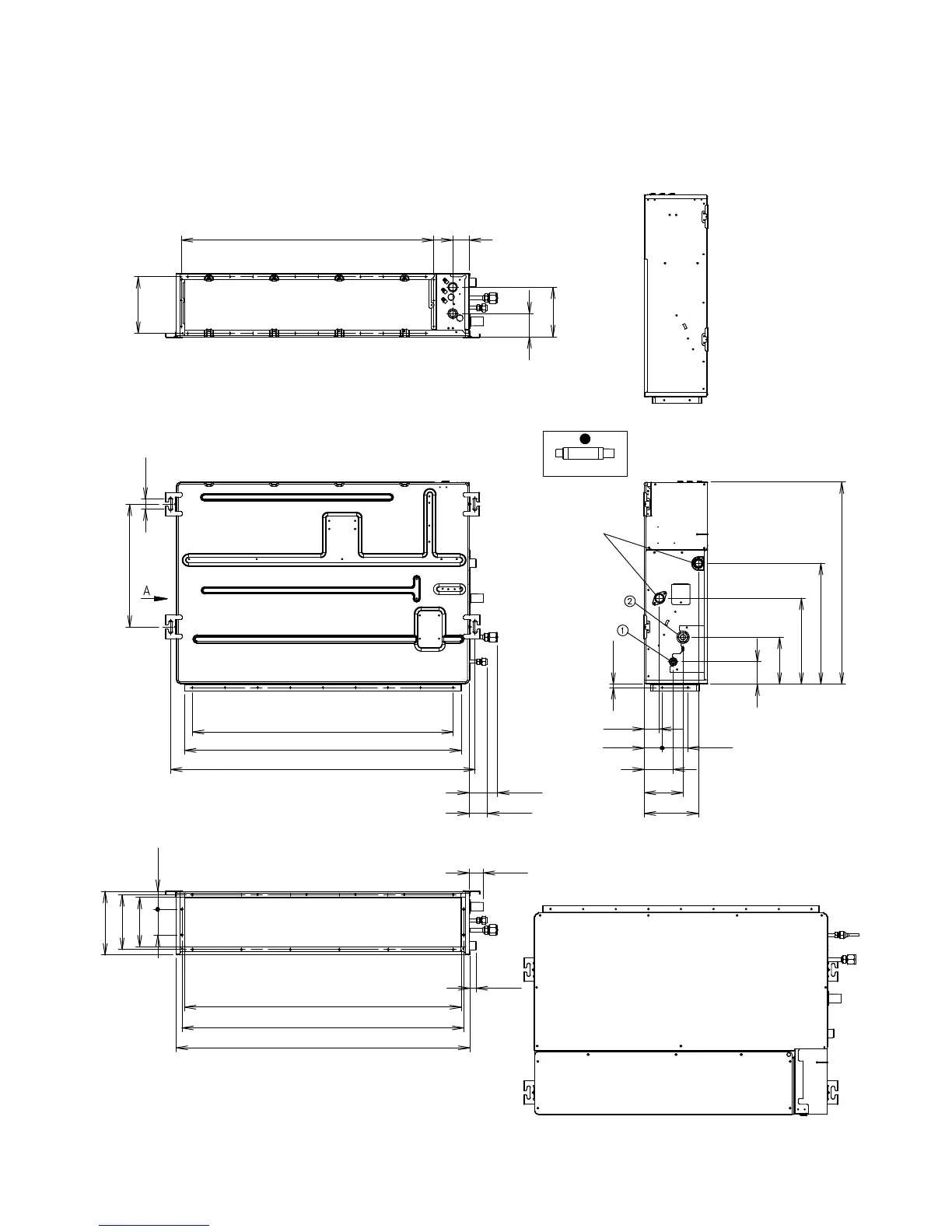
INDOOR UNIT
SLIM DUCT
ARU18RLF
Rear view
View A
Top view
Side view
Front view
Bottom view
(Drain hose)
Drain port
2 (51)
30-15/32 (774)
6-27/32 (174)
2-25/32 (71)
6 (152)
3-7/16 (87)
2-7/32 (56)
33-15/32 (850)
36-25/32 (934)
3-15/16 (100) x 8 = 31-1/2 (800)
1-3/16 (30)
14-27/32 (377)
6-9/16 (167)
4-11/16 (119)
3-1/2 (89)
3-1/16 (78)
2-5/32 (55)
1-27/32 (47)
13/32 (10)
24-13/32 (620)
14-19/32 (371)
10-13/32 (264)
5-21/32 (144)
2-23/32 (69)
33-15/32 (850)
34-1/32 (864)
35-7/16 (900)
1-11/16 (43)
25/32
(20)
7-25/32 (198)
6-5/8 (168)
5-15/16 (151)
3-1/16 (78)
2-5/32 (55)
Drain hose I.D. 3/4 in. , O.D. 1-1/16 in.
Unit : inch (mm)
2010.06.18 12

Other manuals for Fujitsu AUU9RLF

Related product manuals