EasyManua.ls Logo

Fujitsu AUU9RLF - Indoor Unit Compact Wall Mounted; Asu9 Rlf; Asu12 Rlf

Fujitsu AUU9RLF
66 pages
Print Icon
To Next Page IconTo Next Page
To Next Page IconTo Next Page
To Previous Page IconTo Previous Page
To Previous Page IconTo Previous Page
Loading...
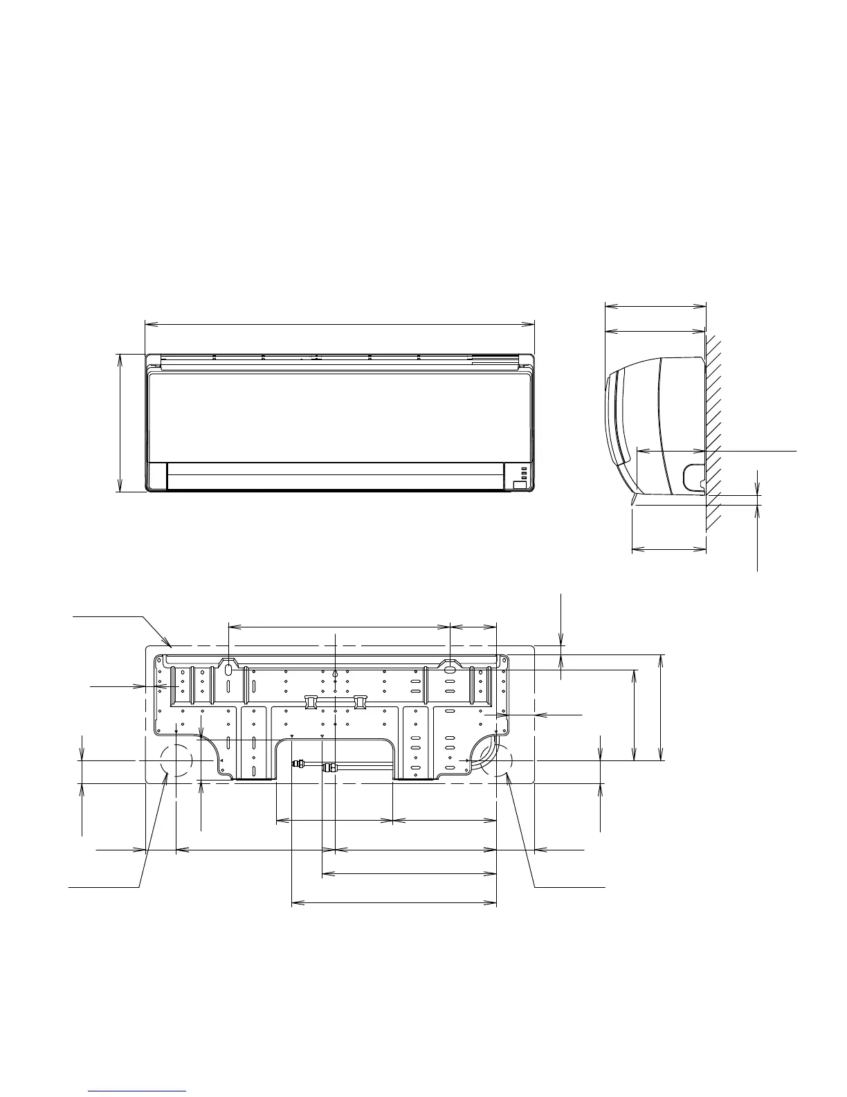
Unit : inch (mm)
INDOOR UNIT
COMPACT WALL MOUNTED
ASU7RLF
ASU9RLF
ASU12RLF
Drain hose
I.D. 17/32 in. (13.8 mm), O.D. 5/8 to 21/32 in. (15.8 to 16.7 mm)
Drain hose : L=20-15/32 in. (520mm)
8-1/16 (205) : Installed state
*1: Vertical flap is downward
8 (203)
5-1/2 (140) *1
13/32 (10) *1
5-23/32 (145) *1
31-3/32 (790)
11-1/32 (280)
3-11/16
(94)
2-1/16 (52)
3-1/16 (78)
ø2-9/16 (65)
for pipe inlet
ø2-9/16 (65)
for pipe inlet
Outline of unit
12-23/32 (323)
13-29/32 (353): Gas pipe
16-11/32 (415): Liquid pipe
12-7/8 (327)
9-11/32 (237)
17-23/32 (450)
8-7/32 (209)
2-7/16
(62)
23/32 (18)
1-27/32 (47)
1-27/32
(47)
7-1/4 (184)
8-15/32 (215)
23/32 (18)
3-7/32
(82)
2010.06.17 8

Other manuals for Fujitsu AUU9RLF

Related product manuals