EasyManua.ls Logo

FUNAI A8C70EP - Page 24

FUNAI A8C70EP
64 pages
Print Icon
To Next Page IconTo Next Page
To Next Page IconTo Next Page
To Previous Page IconTo Previous Page
To Previous Page IconTo Previous Page
Loading...
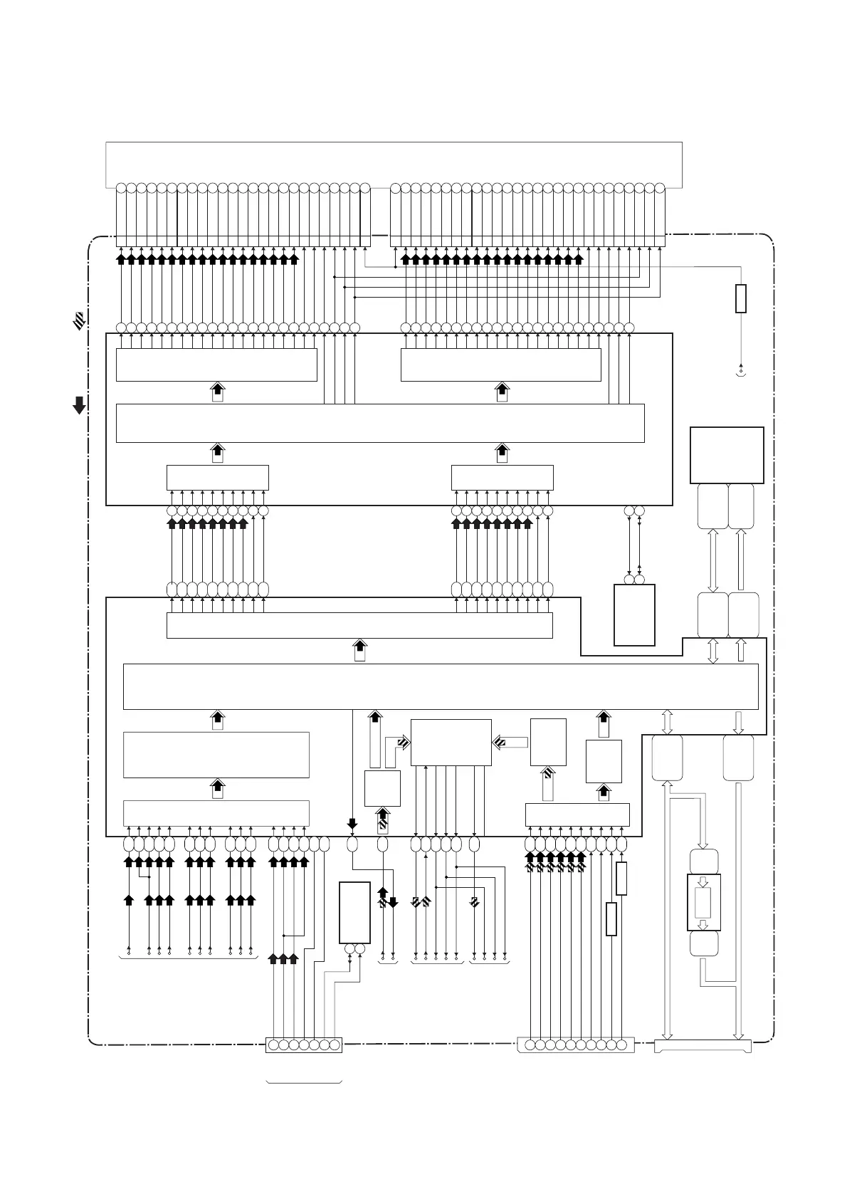
7-5
A8C70BLD
Digital Signal Process Block Diagram
DIGITAL MAIN CBA UNIT
IC4202 (MEMORY)
IC4513 (DIGITAL SIGNAL PROCESS)
IC4201(LCD DRIVE)
LCD MODULE
ASSEMBLY
CN4501
BRSB2(+)52
BRSB2(-)51
BRSB1(+)50
BRSB1(-)49
BRSB0(+)48
BRSB0(-)47
BRSG2(+)46
BRSG2(-)45
BRSG1(+)44
BRSG1(-)43
BRSG0(+)42
BRSG0(-)41
BRSR2(+)17
BRSR2(-)16
BRSR1(+)15
BRSR1(-)14
BRSR0(+)13
BRSR0(-)12
BRSCLK(+)22
BRSCLK(-)21
VCOM7
STH-S11
TP119
POL18
STV5
CN4502
FRSB2(+)53
FRSB2(-)52
FRSB1(+)51
FRSB1(-)50
FRSB0(+)49
FRSB0(-)48
FRSG2(+)47
FRSG2(-)46
FRSG1(+)45
FRSG1(-)44
FRSG0(+)43
FRSG0(-)42
FRSR2(+)18
FRSR2(-)17
FRSR1(+)16
FRSR1(-)15
FRSR0(+)14
FRSR0(-)13
FRSCLK(+)23
FRSCLK(-)22
STH-F55
CPV6
OE15
STV7
LVDS
RX
75
74
73
72
71
70
66
65
64
63
24
25
22
23
20
21
16
17
18
19
62
61
60
59
58
57
56
55
69
68
90
77
78
81
52
51
50
49
48
47
44
43
41
40
39
38
37
36
35
34
33
32
46
145
80
82
84
AF20
9
10
7
8
5
6
1
2
3
4
D-RSDS
OUTPUT
LVDS
RX
SCL
SDA
SCL
SDA
D-RSDS
OUTPUT
87
88
6
5
DATA
MAPPING
AE20
AD19
AD20
AE19
AF19
AF18
AE18
AE21
AF21
AD25
AD26
AE25
AF25
AF24
AE24
AD23
AD24
AF26
AE26
LVDS
TX
DIGITAL
SIGNAL
PROCESS
IC3701 (MEMORY)
5
6
SDA
SCL
D-SUB
3
12
15
1
2
RED
GREEN
BLUE
DATA
CLOCK
JK3701
T5
R4
R3
R5
A/D
CONVERTER
14
13
HSYNC
VSYNC
K5
L5
COMP-Pr
VIDEO
S-VIDEO-Y
S-VIDEO-C
VIDEO-R
VIDEO-G
VIDEO-B
TO VIDEO
BLOCK
DIAGRAM
SW
W3
U3
V3
V4
Y2
Y1
AA1
COMP-Pb
T3
COMP-Y
U4
T4
TU-CVBS
Y3
VGA-HSYNC
VGA-VSYNC
HDMI-IN1
JK4001
TMDS-D0(+)
TMDS-D0(-)
TMDS-D1(+)
TMDS-D1(-)
TMDS-D2(+)
TMDS-D2(-)
SDA
SCL
7
9
4
6
1
3
10
12
16
15
A9
B9
C8
C9
B8
A8
B10
A10
E9
C10
Q4002
BUFFER
Q4001
BUFFER
TMDS-CLOCK(+)
TMDS-CLOCK(-)
VCOM9
TP120
POL19
VCOM-PWM
TS I/F
AB12
DTV-CVBS
AUDIO I/F
TO AUDIO-1
BLOCK
DIAGRAM
TO AUDIO-2
BLOCK
DIAGRAM
ACLK
AUX-ADATA
BCLK
LRCLK
ACLK
BCLK
LRCLK
A DATA 1
A DATA
AD15
AE15
AE16
AF15
AC17
AD16
DATA(0-15)
ADDESS(0-12)
IC3201
A13-15,A18,
A21-23,B13-15,
B17,B19-23
C15,C17-19,
C23,C24,D14,
D15,D17-19,
D22,D23
B1,B9,C2,C8,
D1,D3,D7,D9,
F1,F9,G2,G8,
H1,H3,H7,H9
M2,M3,M7,M8,
N2,N3,N7,N8,
P2,P3,P7,P8,R2
(SDRAM)
HDMI
I/F
AUDIO
DECODER
AB25
TS-DATA
TO VIDEO
BLOCK
DIAGRAM
VIDEO
DECODER
VIDEO SIGNAL
AUDIO SIGNAL
TO SYSTEM
CONTROL
BLOCK
DIAGRAM
IC4511,Q4511,
Q4512,Q4513
DRIVE
CI
CARD
SLOT
Y22,Y23,AA21-23,
AB21-23,AF7-11,
AE9,AE10,AD10
V21,W21,Y21,
AA20,AC20,AC21
AE14,AF14
IC3826
3,4,7,8,
13,14,
17,18
(LATCH)
LATCH
2,5,6,
9,12,15
D(0-15)
D(0-7)
A(0-7)
A(8-13)
A(0-13)

Related product manuals