EasyManua.ls Logo

FUNAI DPVR-7630D - Block Diagrams

FUNAI DPVR-7630D
77 pages
Print Icon
To Next Page IconTo Next Page
To Next Page IconTo Next Page
To Previous Page IconTo Previous Page
To Previous Page IconTo Previous Page
Loading...
1-11-1
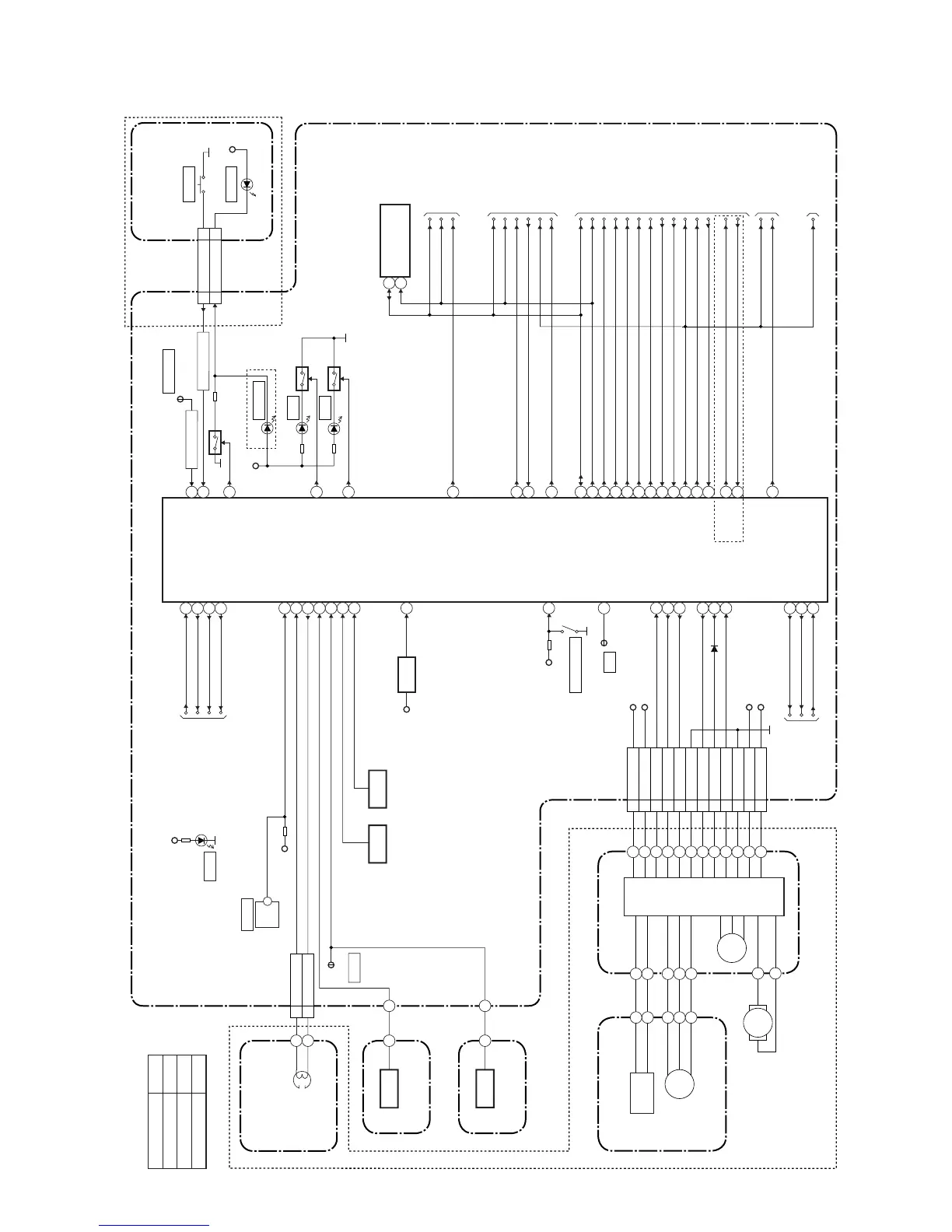
BLOCK DIAGRAMS <VCR SECTION>
Servo / System Control Block Diagram
E8B05BLS
11KEY-1
33
POWER-LED
CN509
D651
CN508
AL+5V
POWER SW CBA
POWER
SW651
POWER
M
LOADING
MOTOR
CAPSTAN MOTOR
CONTROL
HEAD
CN504
ACE HEAD ASSEMBLY
MAIN CBA
KEY- 1
POWER-LED
ST-S
T-REEL
CTL(+)
RESET
REC-SAF-SW
CTL(-)
D-V-SYNC
D-REC-H
RF-SW
H-A-SW
C-ROTA
END-S
(DECK ASSEMBLY)
T-REEL
Q515
RESET
Q506
S-REEL
TIMER+5V
S-REEL
PS502
TP502
KEY- 2
IIC-BUS SDA
IIC-BUS SDA
IIC-BUS SCL
AUDIO-MUTE-H
IIC-BUS SDA
IIC-BUS SCL
Hi-Fi-H-SW
A-MODE
OUTPUT-SELECT
AUDIO-MUTE-H
Hi-Fi-H-SW
A-MODE
H-A-COMP
V-ENV
P-ON-H
C-POW-SW
P-ON-H
C-POW-SW
P-DOWN-H
P-DOWN-H
OUTPUT-SELECT
SW506
TO VIDEO
BLOCK DIAGRAM
TO Hi-Fi AUDIO
BLOCK DIAGRAM
TO AUDIO
BLOCK DIAGRAM
SDA
SCL
IC502 (MEMORY)
IIC-BUS SCL
D-V-SYNC
D-REC-H
RF-SW
H-A-SW
INPUT-SELECT
C-ROTA
IIC-BUS SDA
H-A-COMP
V-ENV
DVD-POWER
C-SYNC
INPUT-SELECT
DVD-POWER
C-SYNC
OUTPUT-SELECT
IIC-BUS SCL
LD-SW
AL+5V
AL+5V
SW507
LD-SW
AL+5V
D555
S-LED
TO POWER
SUPPLY BLOCK
DIAGRAM
TP501
Q507
SENS-INH
IC501
(SERVO/SYSTEM CONTROL)
LINE-MUTE
LINE-MUTE
5
6
SENSOR CBA
SENSOR CBA
END-S
ST-S
Q504
Q503
REC-SAFETY
END-S
CTL
TP503
CTL
TO DVD SYSTEM
CONTROL /SERVO
BLOCK DIAGRAM
<DVD SECTION>
TO DVD VIDEO/
AUDIO BLOCK
DIAGRAM
<DVD SECTION>
CN502
C-FG
C-CONT
D-PFG
C-F/R
LM-
FWD/REV
D-CONT
AL+20.5V/+12V
AL+12V(2)
P-ON+15V
P-ON+5V
58
41
82
6
17
16
13
15
18
33
71
72
21
KEY SWITCH
KEY SWITCH
CYLINDER ASSEMBLY
DRUM
MOTOR
PG
SENSOR
M
OUTPUT-SELECT
OUTPUT-SELECT
M
CAPSTAN
MOTOR
MOTOR
DRIVE
CIRCUIT
REMOTE-VIDEO
TO DVD SYSTEM
CONTROL /SERVO
BLOCK DIAGRAM
<DVD SECTION>
DRV-DATA
DRV-STB
DRV-CLK
DISPLAY-DATA
DISPLAY-STB
DISPLAY-CLK
68
69
70
Q508
Q509
DVD-LED
VCR-LED
D503
VCR
D502
DVD
AL+5V
D505
POWER
1 CTL(-)
2 CTL(+)
1
AL+20.5V/+12V
2
P-ON+5V
3
C-FG
4
C-F/R
5
C-CONT
6
GND
7
LM-FWD/REV
8
D-CONT
9
D-PFG
10
GND
11
AL+12V(2)
12
P-ON+15V
87
78
76
81
77
90
66
67
32
28
86
19
83
14
30
29
8
7
23
97
31
34
79
80
4
10
94
95
9
REMOCON-IN
B
TRICK-H
SECAM-H
TRICK-H
SECAM-H
61
65
A,B
Comparison Chart of
Models & Marks
Model Mark
DPVR-7630D
DBVR-7730D
DCVR-7830D
A
C
B
C

Related product manuals