EasyManua.ls Logo

FUNAI LCD-A2006 - Page 30

FUNAI LCD-A2006
55 pages
Print Icon
To Next Page IconTo Next Page
To Next Page IconTo Next Page
To Previous Page IconTo Previous Page
To Previous Page IconTo Previous Page
Loading...
8-6
L4620SCM4
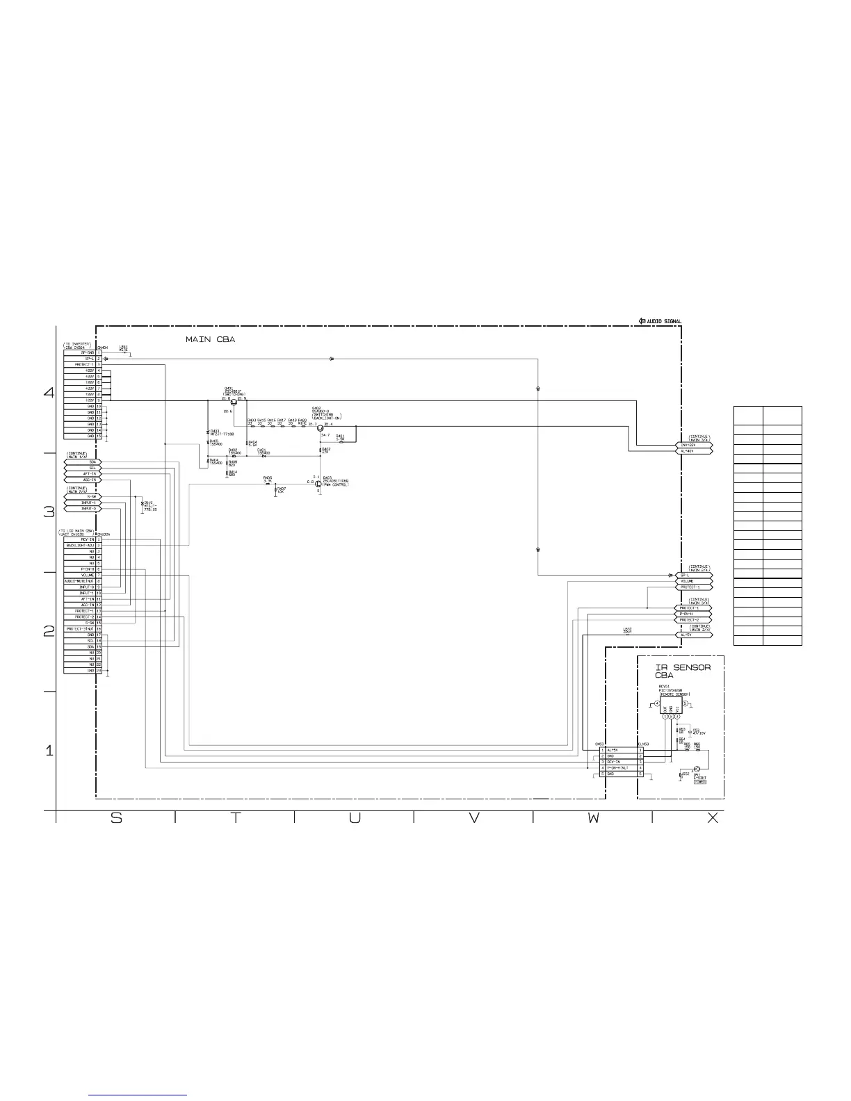
Main 4/4 & IR Sensor Schematic Diagram
CN102A
13.8
20
30.1
45.2
55.2
63.3
70.2
80
92.0
10 0
11 4.4
12 0.4
13 3.8
14 1.5
15 3.4
16 0
17 0
18 5.2
19 5.2
20 0
21 0
22 0
23 0
VOLTAGE CHART
Pin No. Voltage

Related product manuals