EasyManua.ls Logo

GE Multilin 469 - Page 29

GE Multilin 469
338 pages
Print Icon
To Next Page IconTo Next Page
To Next Page IconTo Next Page
To Previous Page IconTo Previous Page
To Previous Page IconTo Previous Page
Loading...
CHAPTER 1: GETTING STARTED
469 MOTOR MANAGEMENT RELAY – INSTRUCTION MANUAL 1–21
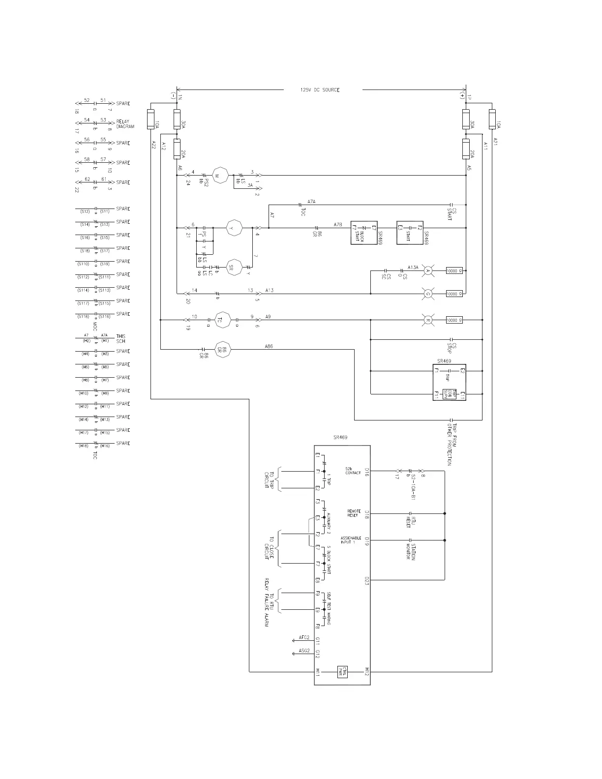
FIGURE 1–3: Typical Control Diagram
806552A2.CDR
COMMON

Table of Contents