EasyManua.ls Logo

GE 45129 - Designing a System

GE 45129
20 pages
Print Icon
To Next Page IconTo Next Page
To Next Page IconTo Next Page
To Previous Page IconTo Previous Page
To Previous Page IconTo Previous Page
Loading...
4
5
you’re concerned about the hot water tank or the
dishwasher leaking?
This system will help alleviate those concerns.
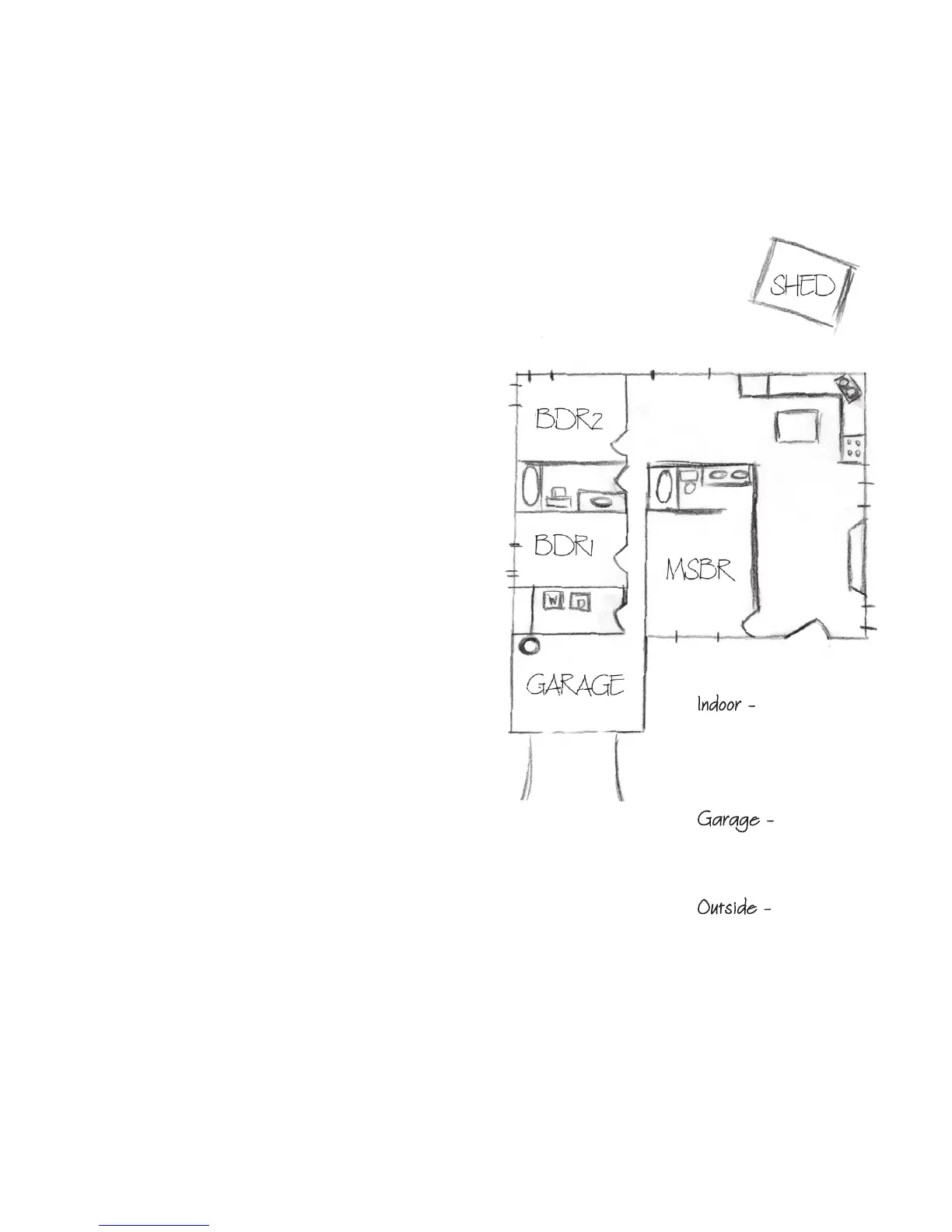
To start, sketch a map of areas in and around your
home and determine which doors and/or windows
need contact Sensors, which areas that might best be
served by a Motion Sensor, etc. The Choice Alert system
can manage up to 16 Sensors a maximum
of any four (4) Sensors in any of the four (4) protection
Zones. (See diagram of the example sketch.)
We recommend installing a Window/Door Sensor on
the door that you enter/exit most often, and another
at your secondary exit. A Motion Sensor can be
positioned in the area that has trafc such as stairs or
hallways. It can also be placed in main rooms (living
rooms, dens, computer rooms). Additional Sensors can
be added for exterior areas like garage door, outside
gate, storage sheds and workshops. You can also use
the Water Leak Sensor to provide an Alert for potential
water damage areas such as around a hot water
tank, washing machine, dishwasher or air conditioner
condensation pan.
Supplies needed: Clean sheet of paper, ruler and pencil with
an eraser.
Note: Motion Sensors can also be used to protect specific
items that might be targeted by intruders (i.e. electronic
equipment, TV’s, stereos and/or computers). Point the Motion
Sensor directly at the equipment from an opposing wall or
corner and if they are disturbed, the alarm will be triggered.
Indoor -
Window/Door Sensor
(6)
5 Water Leak Detectors (2)
<
Motion Sensor (1)
Garage -
5
Water Leak Sensor (1)
; Garage Door Sensor (1)
Outside -
<
Motion Sensor (1)
Window/Door Sensor
(1)
5
5
<
<
;
5

Other manuals for GE 45129

Related product manuals