EasyManua.ls Logo

GE 889 - Page 411

GE 889
580 pages
Print Icon
To Next Page IconTo Next Page
To Next Page IconTo Next Page
To Previous Page IconTo Previous Page
To Previous Page IconTo Previous Page
Loading...
CHAPTER 4: SETPOINTS MONITORING
889 GENERATOR PROTECTION SYSTEM – INSTRUCTION MANUAL 4–281
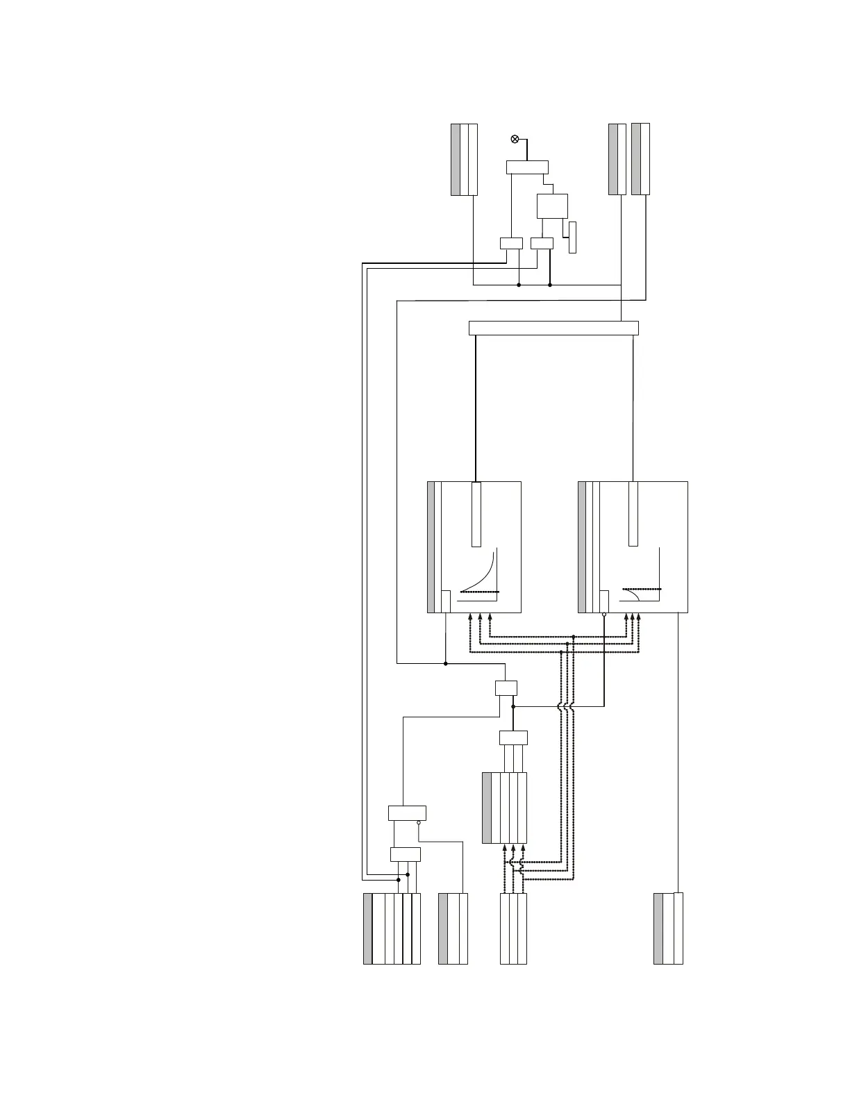
Figure 4-111: Thermal Model Logic Diagram
894144.CDR
SETPOINTS
SETPOINTS
BLOCK:
Phase Currents
Trip Time Constant:
IA RMS
IB RMS
IC RMS
Off=0
Configurable
RUN
SETPOINTS
S
R
FUNCTION:
Disabled=0
OR
FLEXLOGIC OPERAND
THERMAL OL OP
AND AND
OR
LED: ALARM
LATCH
S
R
RESET
Command
Alarm
Latched Alarm
FLEXLOGIC OPERAND
THERMAL OL PKP
AND
SETPOINT
Relays
Do Not Operate, Operate
SETPOINTS
Overload Factor:
IA > OL x Ib
IB > OL x Ib
IC > OL x Ib
OR
AND
Min. Reset Time:
RUN
SETPOINTS
t
I
Reset Time Constant:
OL x IB
TC
used
100%
TC
used
< 5%
FLEXLOGIC OPERAND
THERMAL RESET:
Off=0
t
I
OL x Ib
Reset TC
used
= 0

Table of Contents

Related product manuals