EasyManua.ls Logo

GE Fuji Electric FVR-C9S-2UX Series - Page 12

GE Fuji Electric FVR-C9S-2UX Series
42 pages
To Next Page IconTo Next Page
To Next Page IconTo Next Page
To Previous Page IconTo Previous Page
To Previous Page IconTo Previous Page
Loading...
11
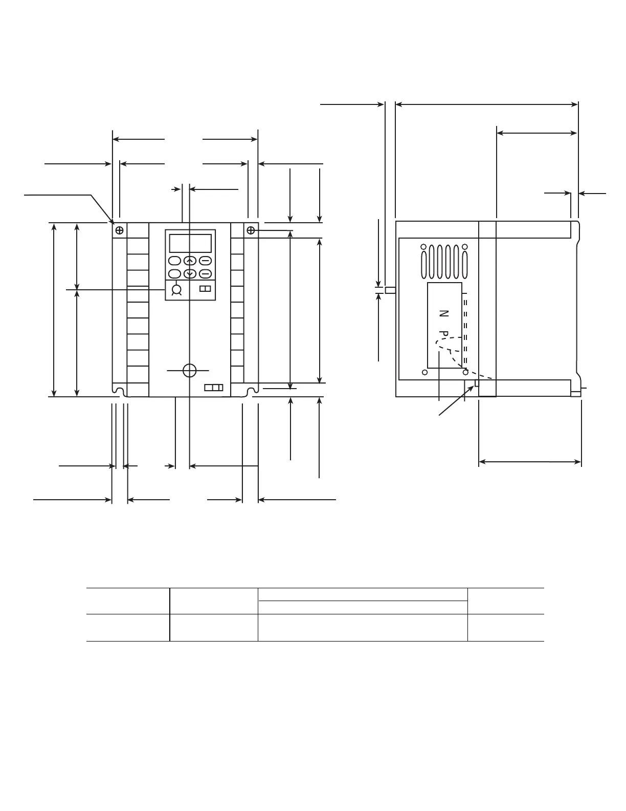
FVR-C9S-2UX
3.86 (98)
2 - dia. 0.20
(2 - dia. 5)
0.24 (6.2)
0.18 (4.5)
0.24 (6.2)
DWG 2: FVR002C9S to FVR003C9S-2UX
0.24 (6)
0.45 (11.5)
TERMINAL M3.5
D1
0.24 (6.2)
0.24 (6.2) D
D2
0.24 (6.2)
4.65 (118)
4.21 (107)
4.33 (110)
5.12 (130)
0.20 (5)
1.97 (50)3.15 (80)
0.24 (6.2)
0.45 (11.5)
0.45 (11.5)
0.43 (11)
3.43 (87)
0.45 (11.5)
Rated Current External Dimensions: inches (mm) DWG No.
Type [A] D D1 D2
FVR002C9S-2UX 7.0 5.14 (130.5) 3.05 (77.5) 2.56 (65) DWG 2
FVR003C9S-2UX 10.0 5.53 (140.5) 3.05 (77.5) 2.56 (65)
2-'005
Artisan Technology Group - Quality Instrumentation ... Guaranteed | (888) 88-SOURCE | www.artisantg.com

Related product manuals