EasyManua.ls Logo

GE JD966 - Standard Installation Preparation

GE JD966
52 pages
Print Icon
To Next Page IconTo Next Page
To Next Page IconTo Next Page
To Previous Page IconTo Previous Page
To Previous Page IconTo Previous Page
Loading...
7
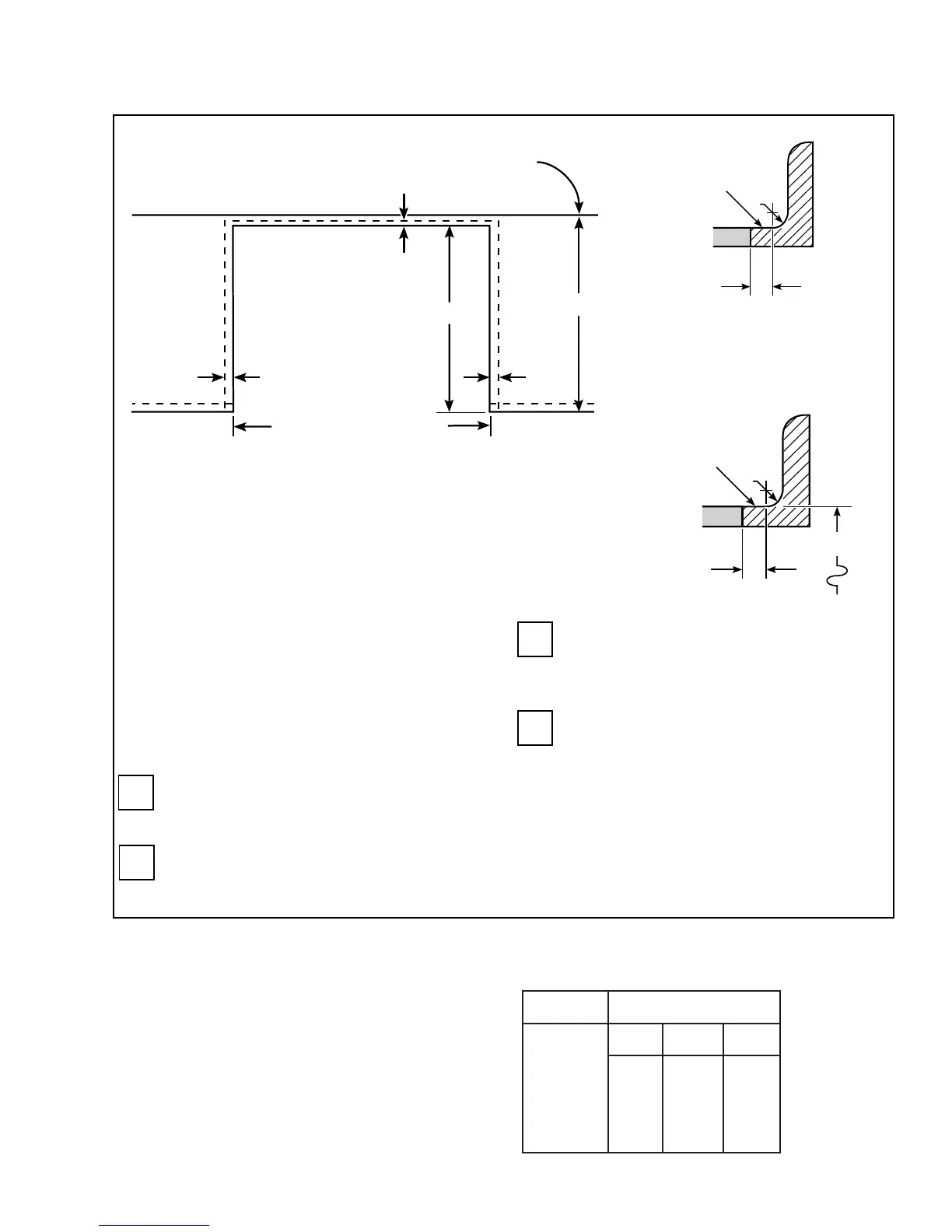
,IWKHFRQVWUXFWLRQRI\RXUFDELQHWFDQQRW
SURYLGHD´IODWDUHDEDFNRIWKHFRXQWHUWRS
RSHQLQJFRQVLGHUFKDQJLQJWKHFRXQWHUWRSWR
DFFRPRGDWHWKLVGLPHQVLRQ6HHDOWHUQDWH
FRQVWUXFWLRQVVHFWLRQ,IWKHDUHDLVQRWIODW
H[FHVVWHQVLRQPD\EHDSSOLHGWRWKHJODVV
FDXVLQJEUHDNDJHDQGYRLGLQJWKHZDUUDQW\
%
5HPRYHFRXQWHUWRSUDLVHGHGJH,I
LQFRUSRUDWHG6HHLOOXVWUDWLRQRQSDJH
&HQWHUWKH´ZLGHRSHQLQJRYHUWKH
DGMDFHQWFDELQHWVDQGPDUNZLWKD
VWUDLJKWHGJH
%
8VLQJDVWUDLJKWHGJHPDUNWKHEDFNOLQH
DW´IURPWKHIURQWHGJHRIWKH
FRXQWHU
%
%HFDUHIXOQRWWRGDPDJHWKHDGMDFHQW
FDELQHWVZKLOHFXWWLQJWKHFRXQWHUWRS
8VHDKDQGRUVDEHUVDZWRPDNH
VWUDLJKWVPRRWKFXWV
%
1/4"
R
FLAT AREA
36"
23-3/16"
25"Typically
Standard Installation
29 -15/16 to 30 -1/16"
Smooth Cut
Wall
9/16" Min.
Flat
1/4" Min.
Flat
9/16" Min.
Flat
1/4"
R
FLAT AREA
Slide-In
Drop-In
Grounding Specifications
Ground Path Resistance 0.10 Ω Max.
Insulation Resistance 250K Ω Min.
36 in.
The Standard Installation of the Drop-In Range
is to hang by the countertop on the side metal
flanges under the glass cooktop. This Range
must not be installed on a base or sub structure.
If the construction of your cabinet cannot provide
a 1/4-in. flat area at the back of the countertop
opening, consider changing the countertop to
accomodate this dimension. If the area is not
flat, excess tension may be applied to the glass
cooktop causing breakage and voiding the
warranty.
Overcurrent Protection Ranges
Standard Installation Preparation
gnitaRCENgnitaRttawoliKmumixaM
pmA53
pmA04
pmA05
V802V632V042
-
4.21
4.71
4.21
4.51
4.12
4.21
0.61
0.22

Other manuals for GE JD966

Related product manuals