EasyManua.ls Logo

GE JP938 - Schematics; Wiring Diagram and Chart

GE JP938
39 pages
Print Icon
To Next Page IconTo Next Page
To Next Page IconTo Next Page
To Previous Page IconTo Previous Page
To Previous Page IconTo Previous Page
Loading...
– 30 –
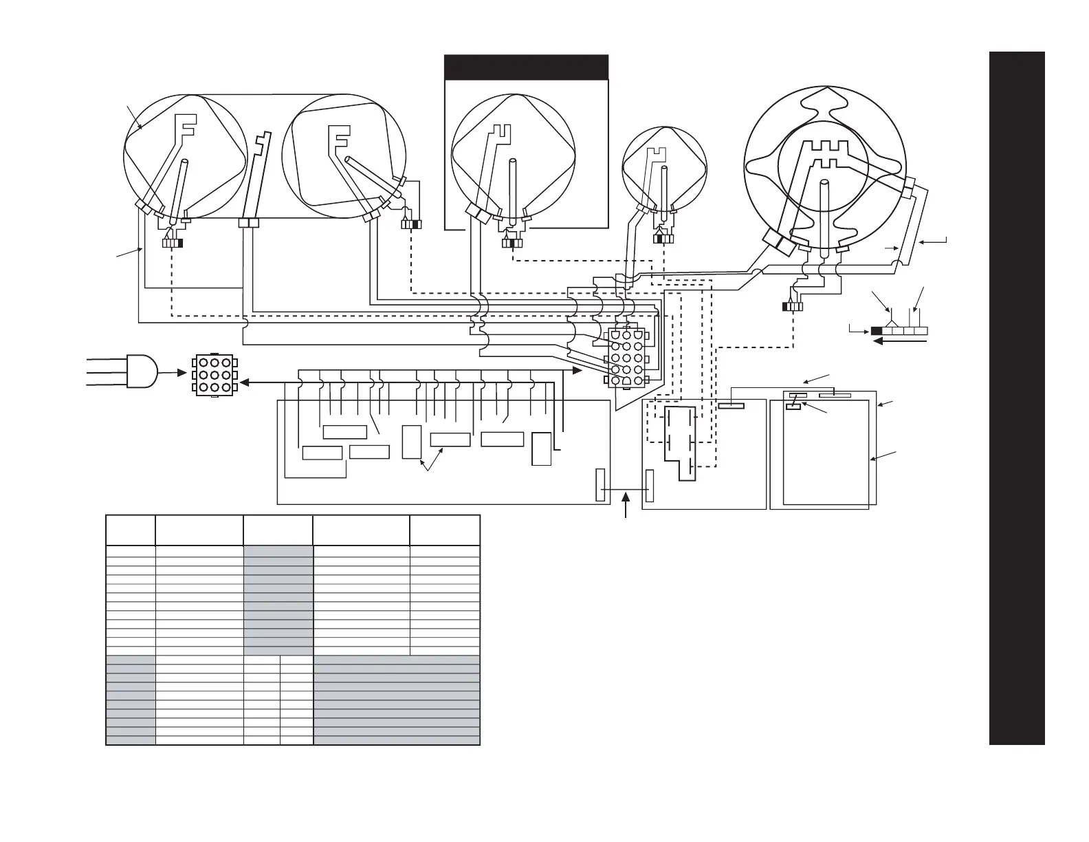
Schematics
Caution: Label all wires prior to disconnection when
servicing the controls. Wiring errors can cause
improper and dangerous operation. Verify proper
operation after servicing.
POWER 9-PIN POWER 15-PIN CONTROL/
BOARD REFERENCE CONNECTOR HEATER CONNECTOR BURNER
COLOR NUMBER (PIN #) (PIN #) TERMINAL #
YELLOW J101 1 LF1
YELLOW J102 11 LF2
ORANGE J103 13 LR2
ORANGE J104 4 LR1
GRAY J105 5 CR1
BROWN J106 12 RR2
BROWN J107 2 RR1
VIOLET J108 3 RF21
BLUE/BLK J109 15 RF22
BLUE J110 6 RF12
GRAY J111 14 CR2
YEL/BLK J112 10 LB2
J113 L1 1
J114 L1 3
J115 L1 2
J116 L1 2
J117 L1 4
J118 L2 7
J119 L2 6
J120 L2 9
J121 L2 9
J122 a 8
LF
LB
LR
R
T
D
R
T
D
1
2
1
2
1
2
R
T
D
1
2
1
2
R
T
D
1
2
1
2
RR
RF2
RF1
POWER BOARD
J103
J110
K107
K106
K105
K102 K101
K
1
0
4
K
1
0
3
CONDUIT
9-PIN POWER
CONNECTOR
12
3
4
5
6
7
8
9
MAIN BOARD
DISPLAY
BOARD
TOUCH
BOARD
26 PIN
RIBBON
J502
8 PIN
RIBBON
CR
1
2
3
4
5
6
7
8
9
10
11
12
13
14
15
15-PIN CONTROL
HEATER CONNECTOR
1
2
3
4
(Pin 5)
(Pin 1)
E
Inductive
Sensor
RTD Wire
Example:
Empty Pin
Blue
with
Black
Traces
Blue
10 Pin Ribbon
J501 CONNECTOR
BRIDGE
JP968 MODEL ONLY
R
T
D
1800W
1800W
800W
J502
J503
1500W
1200W
J504
1500W
1000W
J505
J501
J503
J504
J505
J602
J100
J109
J122
J107
J115 / J116
J106
J108
J117
J102
J120 / J121
J104
J114
J111
J118
J101
J113
J112
J105
J115 / J116
J119
RELAYS
J120/J121
Yellow
with
traces
(jumper
wire)
INDUCTIVE
SENSOR
WIRE
WIRING CHART
GEA00903

Related product manuals