EasyManua.ls Logo

GEL DOSAMATIC PP - Page 31

GEL DOSAMATIC PP
Print Icon
To Next Page IconTo Next Page
To Next Page IconTo Next Page
To Previous Page IconTo Previous Page
To Previous Page IconTo Previous Page
Loading...
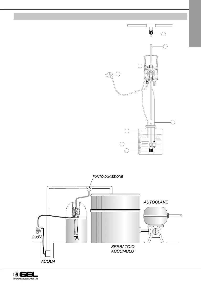
10 - IMPIANTISTICA
10.1 Dosamatic PPI
1 - Pompa dosatrice
2 - Tubo aspirazione
3 - Tubo mandata
4 - Valvola iniezione
5 - Tubo di scarico
6 - Sonda di livello
7 - Filtro di fondo
8 - Cavo alimentazione
10.2 DOSAMATIC PP - PP BIG
31
ITALIANO
4
3
1
8
2
5
6
7
Esempio di dosaggio costante disinfettante

Related product manuals