EasyManua.ls Logo

GEL DOSAMATIC PP - Installation Drawings

GEL DOSAMATIC PP
Print Icon
To Next Page IconTo Next Page
To Next Page IconTo Next Page
To Previous Page IconTo Previous Page
To Previous Page IconTo Previous Page
Loading...
ENGLISH
71
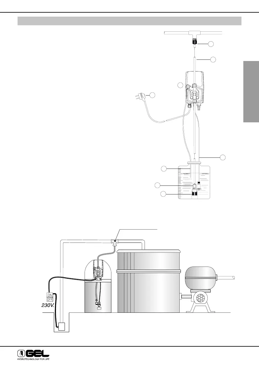
10 - INSTALLATION DRAWINGS
10.1 Dosamatic PPI
1 - Metering pump
2 - Suction hose
3 - Delivery hose
4 - Injection valve
5 - Drain hose
6 - Level probe
7 - Foot filter
8 - Power supply cable
10.2 DOSAMATIC PP - PP BIG
4
3
1
8
2
5
6
7
Example of constant disinfection dosing
INJECTION POINT
SURGE TANK
STORAGE TANK
WATER

Related product manuals