EasyManua.ls Logo

Gemm NEW RUNNER BCB/03 - Page 11

Default Icon
Print Icon
To Next Page IconTo Next Page
To Next Page IconTo Next Page
To Previous Page IconTo Previous Page
To Previous Page IconTo Previous Page
Loading...
BCB_N Rev.04 pag. 11
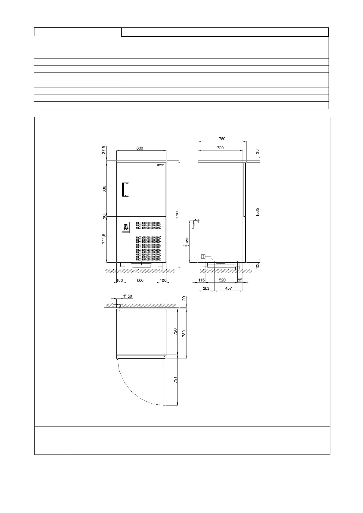
Modello
BCB/10
Dimensioni esterne
cm
80 x 78 x 170h
Peso
kg
145
Capacità teglie
nr
10 EN (cm 60 x 40) oppure 10 GN (cm 53 x 32,5)
Temperatura interna cella
°C
+ 95 / - 40
Rendimento
kg
26 (+ 65 °C ÷ + 3 °C); 16 (+ 65 °C ÷ - 18 °C)
Gas
R 404 a
Potenza compressore
Hp
1,5
Potenza max assorbita
W
1628
Tensione di alimentazione
Volt 1x230 ~ 50 Hz
Tab. 1/c
R
Alimentazione elettrica: cavo 3x1.5 mm
2
completo di spina Schuko; L=4000 mm
Electricity supply: 3x1.5 mm
2
wire complete with Schuko plug; L=4000 mm
Elektrischer Stromanschluss: Kabel 3x1,5 mm
2
komplett mit Schukostecker; L=4000 mm
Alimentation électrique: câble 3x1.5 mm
2
avec fiche Schuko; L=4000 mm
Fig. 2/c

Table of Contents

Related product manuals