EasyManua.ls Logo

Gemm NEW RUNNER BCB/03 - Page 12

Default Icon
Print Icon
To Next Page IconTo Next Page
To Next Page IconTo Next Page
To Previous Page IconTo Previous Page
To Previous Page IconTo Previous Page
Loading...
BCB_N Rev.04 pag. 12
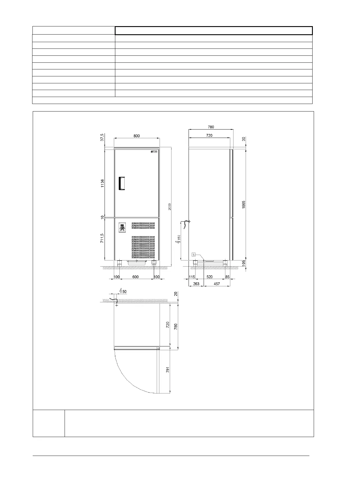
Modello
BCB/15
Dimensioni esterne
cm
80 x 78 x 200h
Peso
kg
175
Capacità teglie
nr
15 EN (cm 60 x 40) oppure 15 GN (cm 53 x 32,5)
Temperatura interna cella
°C
+ 95 / - 40
Rendimento
kg
43 (+ 65 °C ÷ + 3 °C); 32 (+ 65 °C ÷ - 18 °C)
Gas
R 404 a
Potenza compressore
Hp
3
Potenza max assorbita
W
2986
Tensione di alimentazione
Volt 3x400 ~ 50 Hz
Tab. 1/d
R
Alimentazione elettrica: cavo 5x1.5 mm
2
completo di spina Schuko; L=4000 mm
Electricity supply: 5x1.5 mm
2
wire complete with Schuko plug; L=4000 mm
Elektrischer Stromanschluss: Kabel 5x1,5 mm
2
komplett mit Schukostecker; L=4000 mm
Alimentation électrique: câble 5x1.5 mm
2
avec fiche Schuko; L=4000 mm
Fig. 2/d

Table of Contents

Related product manuals