EasyManua.ls Logo

Generac Mobile MMG35DF4 - 4-Position AC Box

Generac Mobile MMG35DF4
60 pages
Print Icon
To Next Page IconTo Next Page
To Next Page IconTo Next Page
To Previous Page IconTo Previous Page
To Previous Page IconTo Previous Page
Loading...
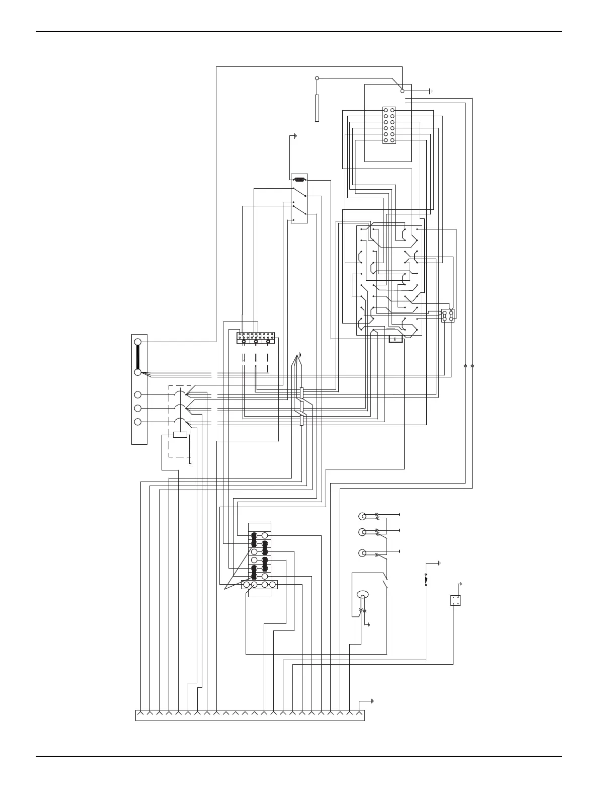
48 Owner’s Manual for Mobile Generator
Wiring Diagrams
4-Position AC Box
TO
GND
BAR
GN/YL
GN/YL
GN/YL
GN/YL
WT
WT
WT
MAIN
CIRCUIT
BREAKER
TO
GND
BAR
GROUND
TO
FRAME
GENERATOR
F+
F-
BN/WT4
BN/WT4
BN3
BN3
(4) JUMPER
WIRES ON PHASE
SWITCH 11-19, 13-21,
23-38, 27-33
GROUND
STUD
GROUND BAR
TO
LED LEDLED
LED
TO
GND
BAR
TO
GND
BAR
TO
GND
BAR
TO
GND
BAR
BN/WT3
BN2
TO
GND
BAR
GND
BAR
GND
TO
(T7)
CT-3
L2
L3
SHUNT
L1
CT-2CT-1
L0
MECHANICAL LUGS
12VDC
(T9)
GND
(L0)
BLK
BLK
BLK
BLK
BLK
BLK
BLK
34
3329
30
36
35
32
31
37
38
39
40
5913
61014
7
8
11
12
15
16
1
2
3
4
2
7
81
46 53
RD1
GN/YL
BN/WT
BL
RD
VOLT REGULATION
RELAY
17 21 25
18 22 26
19
20
23
24
27
28
RD/BK
BK
BLK
TP0
BK
RD
BK
RD
2
1
WT
YL
L3
L2
L1
REMOVE JUMPERS FOR 4 POSITION PHASE SWITCH
12
3
10
7
6
5
4
G
BN2
BN/WT3
12
4
3
RD1
RD/BK
G
11
8
12
9
BK/WT
LUG
DOOR
CNO
(HELD
CLOSED
NORMALLY)
OR/WT1
PANEL/INTERIOR
LIGHT
RD
BK
RD
BL
WT
YL
PAN EL
LIGHT
LUG
LIGHT1
LUG
LIGHT2
INTERIOR
LIGHT2
OR/WT3
BL/YL
1
234567
TB2
OR/WT3
BL/YL
BK/WT
BK
WT
BL/YL BL/YL
BK/WT
BK/WT
BK
WT
BK
WT
WT
BN
SWITCH
TB3
2
1
REMOTE
START
CONTACT
BK/WT
GY/OR
BL/YL
GN/YL
13
18
19
16
17
12
23
24
4
8
2
15
14
11
20
7
5
1
3
22
6
24 PIN
CONN 20
10
21
9
BN/WT1
BN1
OR/WT1
GY/OR
OR/WT2
BN/WT2
BN
BK
GN/YL
YL/WT
OR/WT
BN/WT
BL/YL
90633_ORG_01.20.15

Table of Contents

Related product manuals