EasyManua.ls Logo

Generac Power Systems 1470-0 - Wiring Diagram

Generac Power Systems 1470-0
24 pages
Print Icon
To Next Page IconTo Next Page
To Next Page IconTo Next Page
To Previous Page IconTo Previous Page
To Previous Page IconTo Previous Page
Loading...
7000EXL Extended Life Generator
19
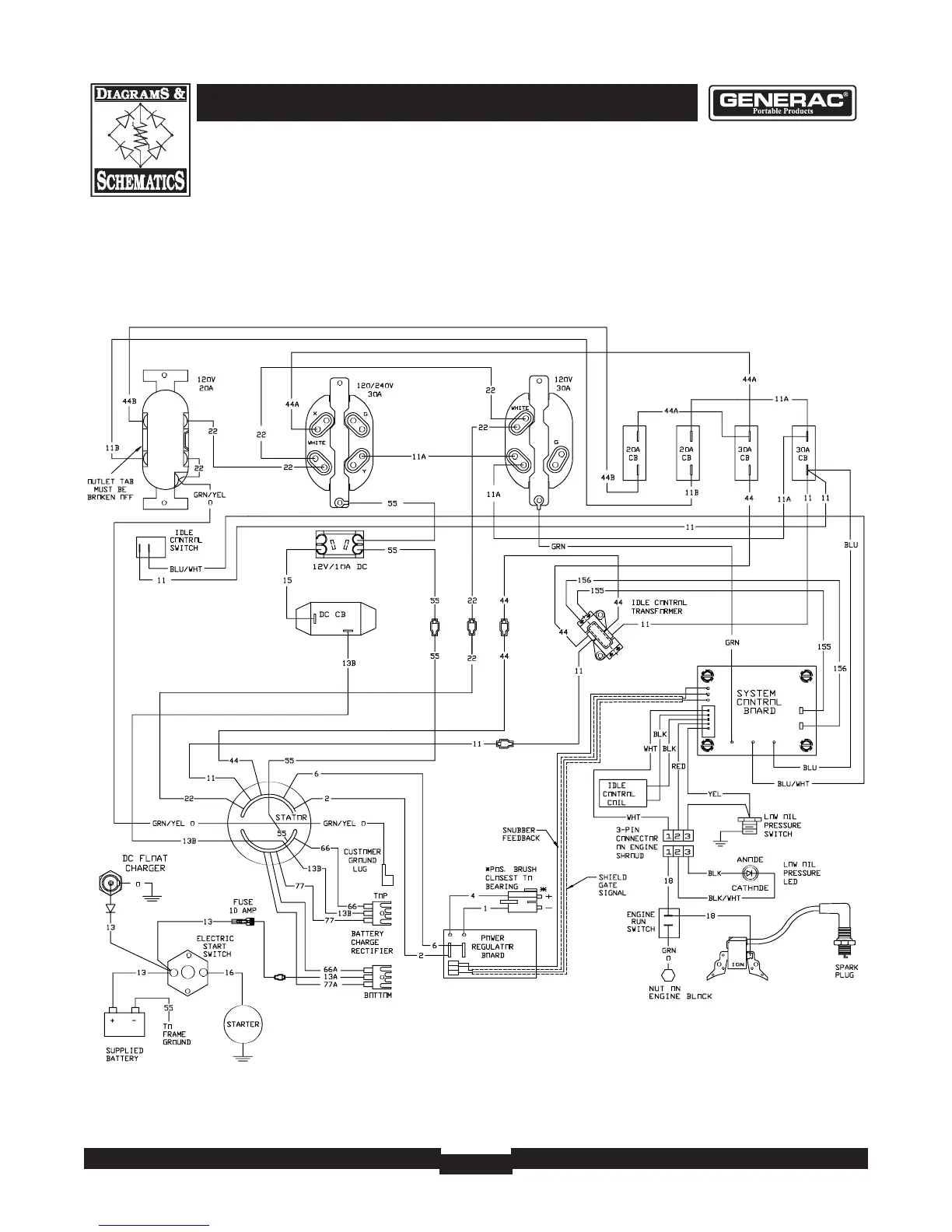
WIRING DIAGRAM

Related product manuals