EasyManua.ls Logo

Generac Power Systems 7kW - Page 38

Generac Power Systems 7kW
68 pages
Print Icon
To Next Page IconTo Next Page
To Next Page IconTo Next Page
To Previous Page IconTo Previous Page
To Previous Page IconTo Previous Page
Loading...
36
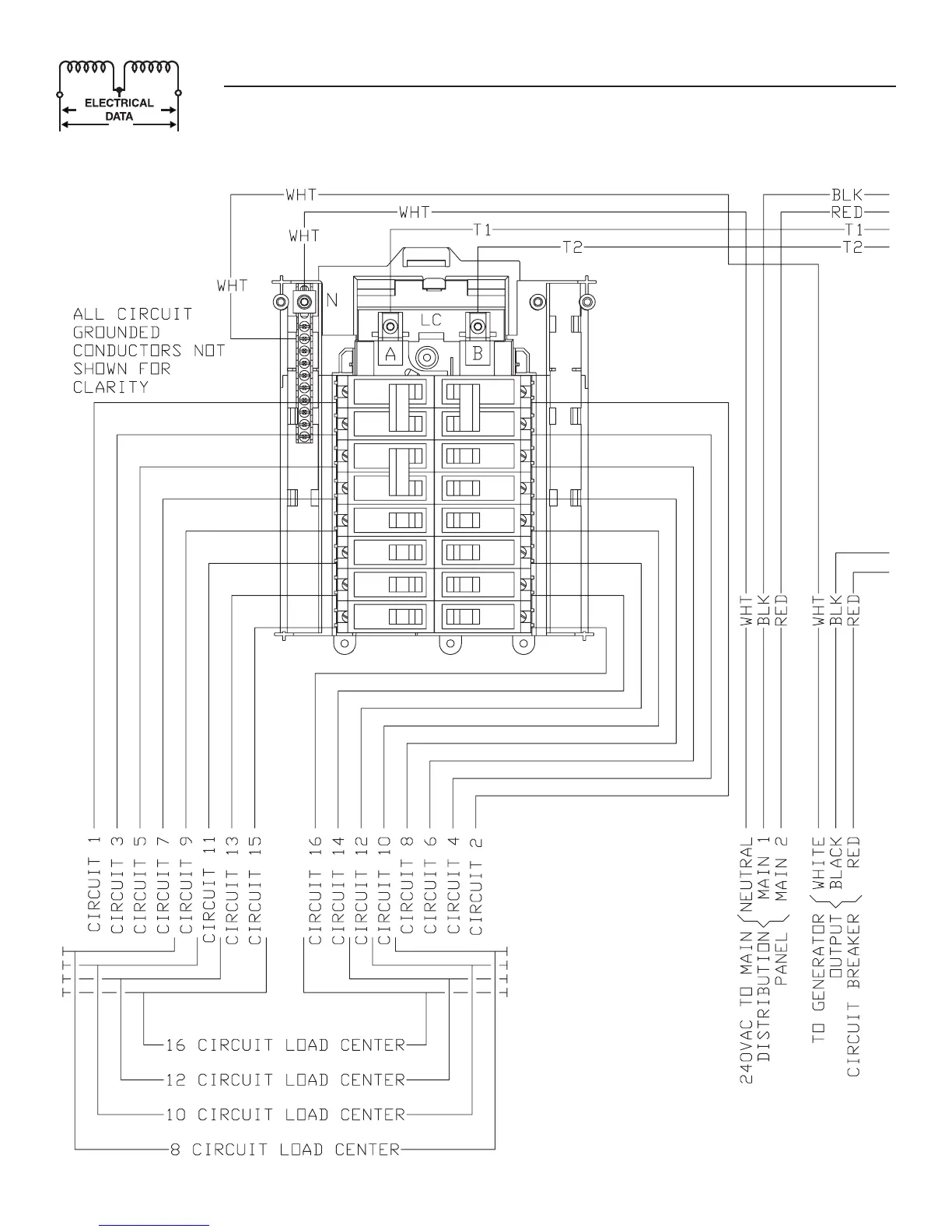
Section 6 — Electrical Data
Air-cooled Generators
Wiring Diagram – 8, 10, 12 and 16 Circuit Load Center – Drawing No. 0F9070-A

Table of Contents

Related product manuals