EasyManua.ls Logo

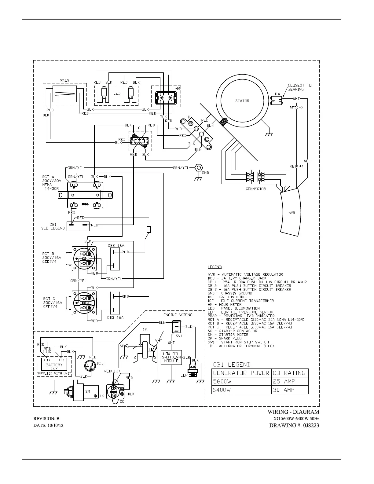
Generac Power Systems RS7000E - Wiring Diagram and Electrical Schematic, XG5600 E;XG6400 E Drawing No. 0 J8223-B

Generac Power Systems RS7000E
114 pages
Print Icon
To Next Page IconTo Next Page
To Next Page IconTo Next Page
To Previous Page IconTo Previous Page
To Previous Page IconTo Previous Page
Loading...
Section 7 Electrical Data
88 Diagnostic Repair Manual
Wiring Diagram and Electrical Schematic, XG5600E/XG6400E Drawing No. 0J8223-B

Table of Contents

Related product manuals