EasyManua.ls Logo

Goodman AEPF - Page 5

Goodman AEPF
12 pages
Print Icon
To Next Page IconTo Next Page
To Next Page IconTo Next Page
To Previous Page IconTo Previous Page
To Previous Page IconTo Previous Page
Loading...
5
HIGH VOLTAGE!
DISCONNECT ALL POWER BEFORE SERVICING.
MULTIPLE POWER SOURCES MAY BE PRESENT. FAILURE TO DO SO
MAY CAUSE PROPERTY DAMAGE, PERSONAL INJURY OR DEATH.
WARNING
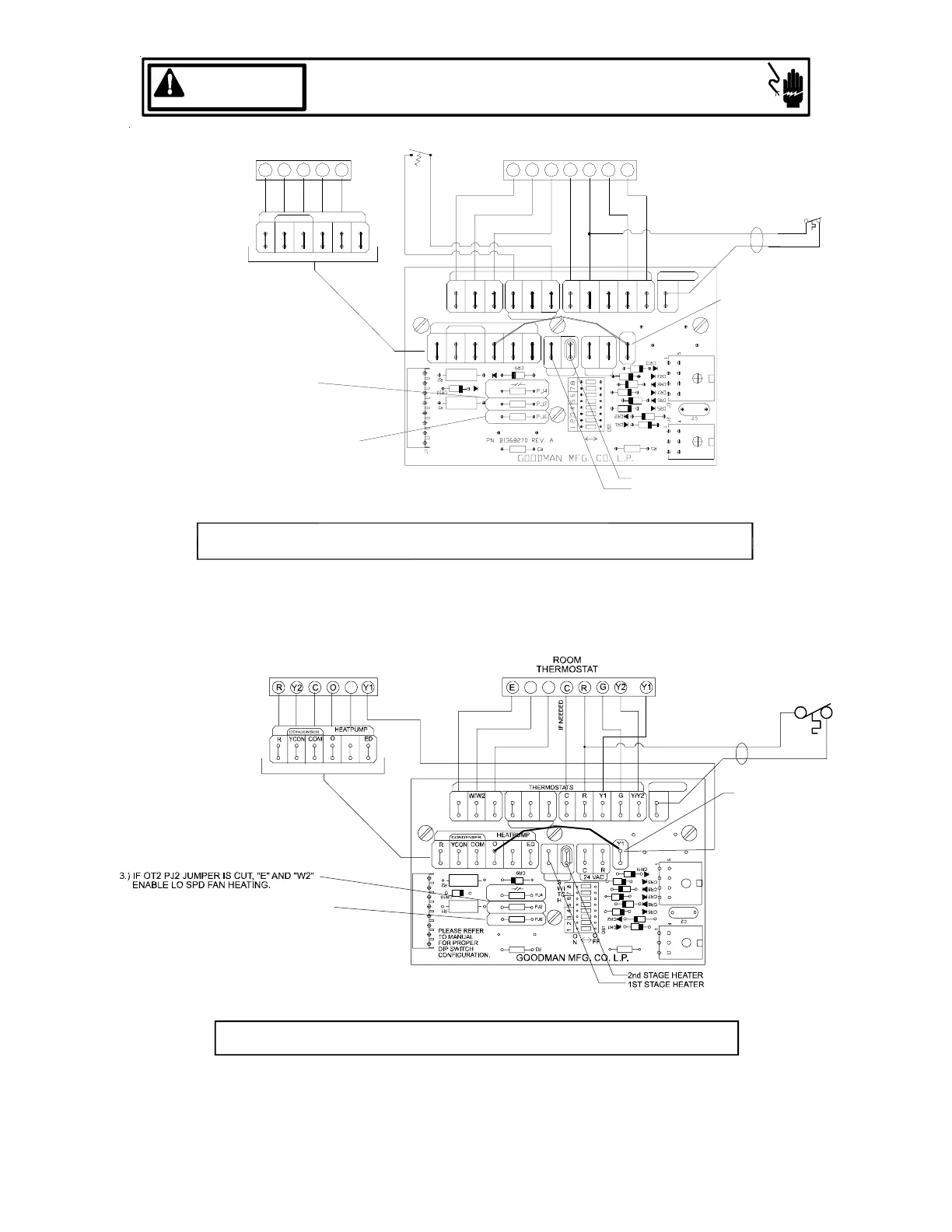
ROOM
THERMOSTAT
OT2
THERMOSTATS
W1
HEATER
HEATPUMP - 2 STG EMHT 1 STG AUX - 1 OUTDOOR T'STAT
OT1OW/W2E\W1 OTC
NOTES:
1.) Y ENABLES HI SPD FAN COOLING
2.) E ENABLES LO SPD FAN HEATING
W2 AND OT2 CLOSED ENABLES HI SPD FAN HEATING
3.) OT1 PJ4 AND 0T2 PJ2 MUST BE CUT
FOR THIS CONFIGURATION
PLEASE REFER
TO MANUAL
FOR PROPER
DIP SWITCH
CONFIGURATION.
(CFM)
R
OT1
HUM
OT2
W2W1
HEATPUMP
COM
CONDENSER
YCON O EDW2
OUTDOOR
O
HEATPUMP
HEATPUMP
R
CONDENSER
YCON OCOM
RYC
THERMOSTAT
W2 ED
W2
OE
W2
OUTDOOR
HUMGY/Y2Y1RC
REMOVE
PRODUCTION
WIRE Y1 - O
DIP
1st STAGE HEATER
2nd STAGE HEATER
ON
OFF
SWITCH
W2
24 VAC
CR
Y1
HUMIDISTAT
IF NEEDED
GCR
Y
HUMIDISTAT
(OPTIONAL)
SEE NOTE 5
NO AUX HEAT IN HEATPUMP MODE UNTIL OUTDOOR T'STAT CLOSES
4.) DIP SWITCH #4 MUST BE IN THE "ON" POSITION.
5.) CUT HUM PJ6 JUMPER IF USING HUMIDISTAT.
STAT OPENS ON HUMIDITY RISE.
2 SPEED HEAT PUMP WITH SINGLE OR TWO STAGE HEATING
(OPTIONS FOR EMERGENCY HEAT) WITH CONVENTIONAL TWO STAGE THERMOSTAT
J1
PN. B1368274
OT1
OT2
HUM
W1 W2
W2
DI
P
W2W1
OUTDOOR
J2 J3
OT2 HUM
HUMIDISTAT
OT1OTC
E\W1
W2
W2
HEATPUMP
W2
HUMIDISTAT
(OPTIONAL)
REMOVE
PRODUCTION
WIRE Y1-O
SEE NOTE 4
NOTES:
1.) Y ENABLES HI SPD FAN COOLING
2.) E ENABLES LO SPD FAN HEATING
4.) CUT HUM PJ6 JUMPER IF USING HUMIDISTAT
STAT OPENS ON HUMIDITY RISE
5.) DIP SWITCH #4 MUST BE IN THE "OFF" POSITION
HEATPUMP - WITH 1 STG EMHT 1 STG AUX HEAT
O
O
Wiring is subject to change, always refer to the wiring diagram on the unit for the most up-to-date wiring.

Other manuals for Goodman AEPF

Related product manuals