EasyManua.ls Logo

Goodman ARPF - Page 10

Goodman ARPF
42 pages
Print Icon
To Next Page IconTo Next Page
To Next Page IconTo Next Page
To Previous Page IconTo Previous Page
To Previous Page IconTo Previous Page
Loading...
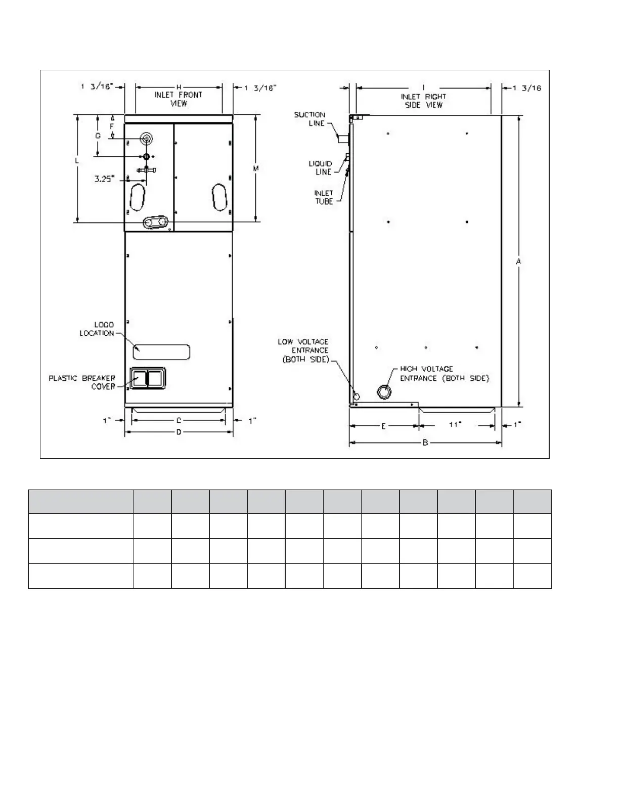
PRODUCT DIMENSIONS
10
ADPF
2 ȹ
Model A B C D E F G H I L M
ADPF18241/16 42ȶ 22” 13½” 15½” 10” 3½” 6
1
/
16
”13ȶ”17
15
/
16
”15½ 15
5
/
16
ADPF30421/16 53¼ 24” 20” 22” 12” 9¼” 11
13
/
16
”19ȸ”19
15
/
16
”21
7
/
16
”21¼
ADPF48601/16 53¼ 24” 20” 22” 12” 9¼” 11
13
/
16
”19ȸ”19
15
/
16
”21
7
/
16
”21¼

Related product manuals