EasyManua.ls Logo

Goodman ARPF - Page 21

Goodman ARPF
42 pages
Print Icon
To Next Page IconTo Next Page
To Next Page IconTo Next Page
To Previous Page IconTo Previous Page
To Previous Page IconTo Previous Page
Loading...
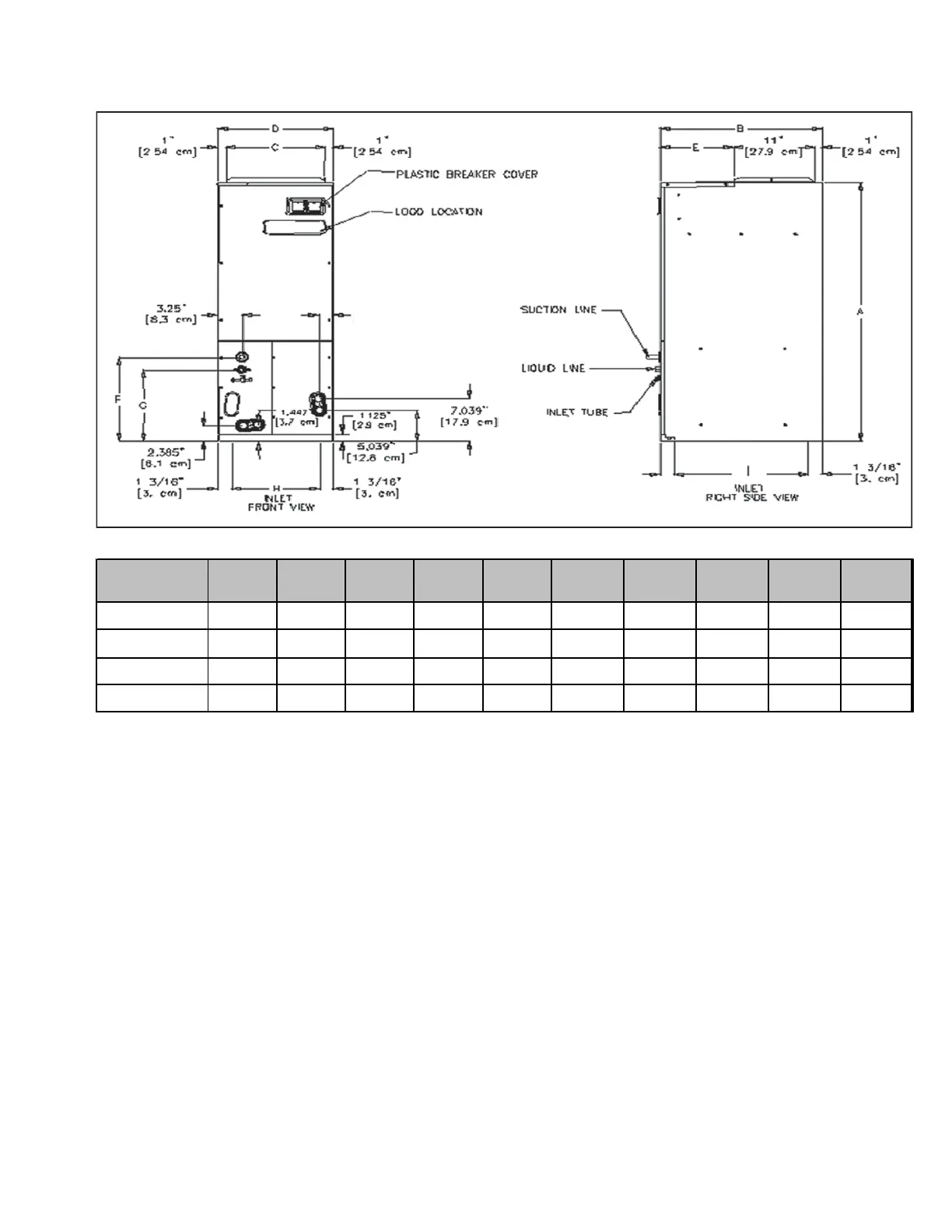
PRODUCT DIMENSIONS
21
ASPF
J
2 ȹ
[7.30 cm]
Model ABCDE F G H I J
ASPF183016*
46 3/4" 22" 17 1/2" 19 1/2" 10' 14 1/2" 11 15/16" 17 1/8" 17 15/16" 2"
ASPF303616*
53 1/4" 24" 20" 22" 12" 19 5/8" 11 15/16" 19 5/8" 19 15/16" 1 13/16"
ASPF313716*
53 1/4" 24" 20" 22" 12" 19 5/8" 11 15/16" 19 5/8" 19 15/16" 1 13/16"
ASPF426016*
53 1/4" 24" 20" 22" 12" 19 5/8" 11 15/16" 19 5/8" 19 15/16" 1 13/16"

Related product manuals