EasyManua.ls Logo

Goodman GCS9 - Wiring Diagram

Goodman GCS9
36 pages
Print Icon
To Previous Page IconTo Previous Page
To Previous Page IconTo Previous Page
Loading...
36
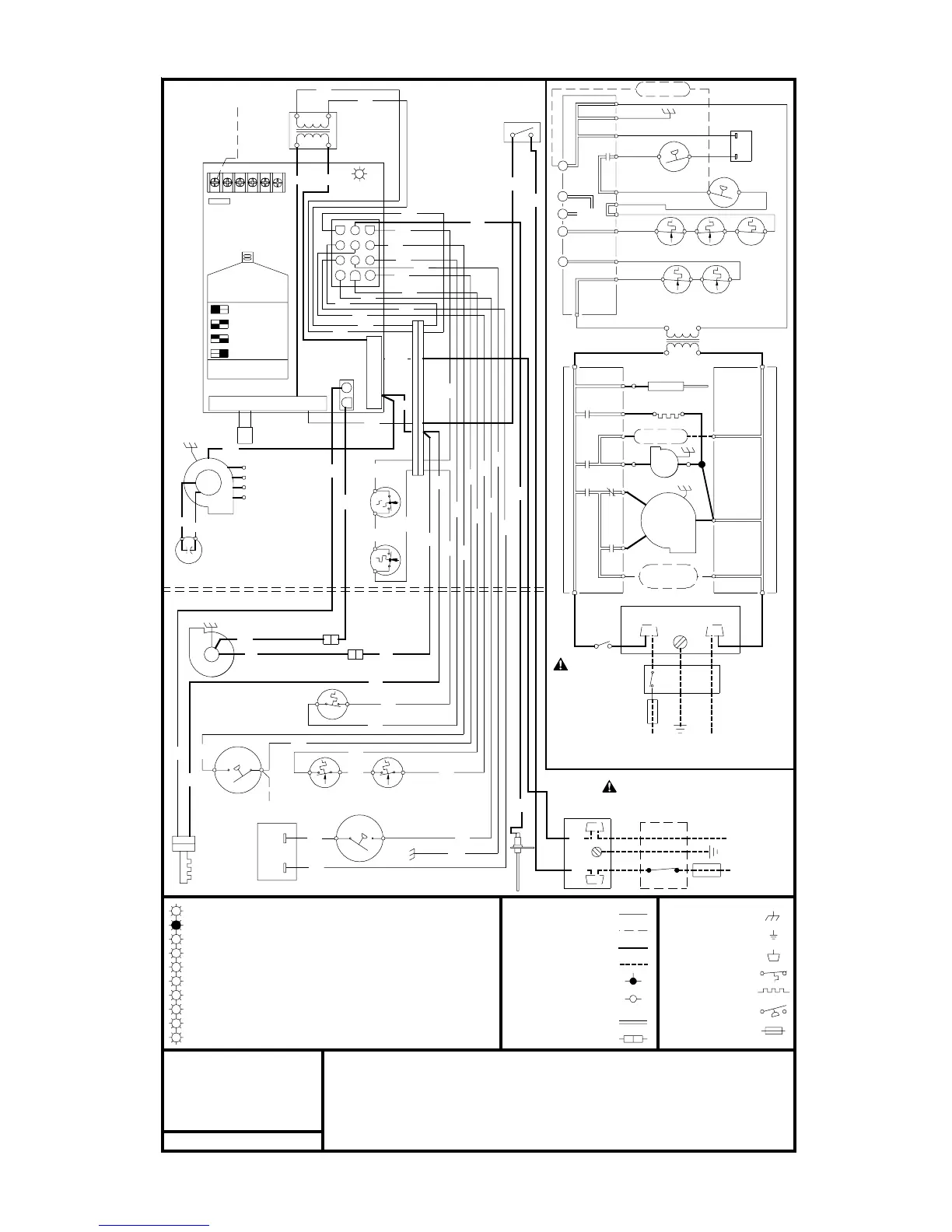
GMS9/GCS9 WIRINGMS9/GCS9 WIRIN
GMS9/GCS9 WIRINGMS9/GCS9 WIRIN
GMS9/GCS9 WIRIN
G DIAGRAG DIAGRA
G DIAGRAG DIAGRA
G DIAGRA
MM
MM
M
© 2004-2005 Goodman Manufacturing Company, L.P.
Wiring is subject to change, always refer to the wiring diagram on the unit for the most up-to-date wiring.
M
1
G
A
S
V
A
L
V
E
C
2
T
O
1
1
5
V
A
C
/
1
Ø
/
6
0
H
Z
P
O
W
E
R
S
U
P
P
L
Y
W
I
T
H
O
V
E
R
C
U
R
R
E
N
T
P
R
O
T
E
C
T
I
O
N
D
E
V
I
C
E
W
A
R
N
I
N
G
:
D
I
S
C
O
N
N
E
C
T
P
O
W
E
R
B
E
F
O
R
E
S
E
R
V
I
C
I
N
G
.
W
I
R
I
N
G
T
O
U
N
I
T
M
U
S
T
B
E
P
R
O
P
E
R
L
Y
P
O
L
A
R
I
Z
E
D
A
N
D
G
R
O
U
N
D
E
D
.
TO 115 VAC/ 10/60HZ
POWER SUPPLY WITH
DEVICE
OVERCURRENT PROTECTION
6
F
L
A
S
H
E
S
=
O
P
E
N
R
O
L
L
O
U
T
1
F
L
A
S
H
=
S
Y
S
T
E
M
L
O
C
K
O
U
T
(
R
E
T
R
I
E
S
/
R
E
C
Y
C
L
E
S
E
X
C
E
E
D
E
D
)
E
L
E
C
T
R
O
N
I
C
A
I
R
C
L
E
A
N
E
R
Y
L
Y
E
L
L
O
W
O
R
O
R
A
N
G
E
V
T
V
I
O
L
E
T
G
N
G
R
E
E
N
B
K
B
L
A
C
K
B
R
B
R
O
W
N
W
H
W
H
I
T
E
B
U
B
L
U
E
G
Y
G
R
A
Y
R
D
R
E
D
C
O
L
O
R
C
O
D
E
S
:
L
O
W
V
O
L
T
A
G
E
(
2
4
V
)
L
O
W
V
O
L
T
A
G
E
F
I
E
L
D
H
I
V
O
L
T
A
G
E
(
1
1
5
V
)
H
I
V
O
L
T
A
G
E
F
I
E
L
D
N
O
T
E
S
:
1
.
S
E
T
H
E
A
T
A
N
T
I
C
I
P
A
T
O
R
O
N
R
O
O
M
T
H
E
R
M
O
S
T
A
T
A
T
0
.
7
A
M
P
S
.
2
.
M
A
N
U
F
A
C
T
U
R
E
R
'
S
S
P
E
C
I
F
I
E
D
R
E
P
L
A
C
E
M
E
N
T
P
A
R
T
S
M
U
S
T
B
E
U
S
E
D
W
H
E
N
S
E
R
V
I
C
I
N
G
.
2
2
3
1
4
8
0
1
R
E
V
.
0
1
O
R
(
M
E
D
L
O
W
)
B
U
(
M
E
D
)
R
D
(
L
O
W
)
G
A
S
V
A
L
V
E
C
2
M
1
C
G
R
W
I
N
T
E
R
N
A
L
T
O
I
N
T
E
G
R
A
T
E
D
C
O
N
T
R
O
L
J
U
N
C
T
I
O
N
E
Q
U
I
P
M
E
N
T
G
N
D
F
I
E
L
D
G
N
D
D
I
A
G
N
O
S
T
I
C
L
E
D
2
C
I
R
C
U
I
T
C
O
N
N
E
C
T
O
R
H
O
T
S
U
R
F
A
C
E
I
G
N
I
T
E
R
O
V
E
R
C
U
R
R
E
N
T
P
R
O
T
.
D
E
V
I
C
E
I
G
N
I
T
E
R
T
H
(
3
)
I
N
T
E
G
R
A
T
E
D
C
O
N
T
R
O
L
M
O
D
U
L
E
J
U
N
C
T
I
O
N
B
O
X
L
I
N
E
-
H
L
I
N
E
-
N
X
F
M
R
-
H
INTEGRATED CONTROL MODULE
INTEGRATED CONTROL MODULE
G
N
D
D
I
S
C
O
N
N
E
C
T
L
N
D
I
S
C
O
N
N
E
C
T
P
O
W
E
R
B
E
F
O
R
E
S
E
R
V
I
C
I
N
G
.
W
I
R
I
N
G
T
O
U
N
I
T
M
U
S
T
B
E
P
R
O
P
E
R
L
Y
P
O
L
A
R
I
Z
E
D
A
N
D
G
R
O
U
N
D
E
D
.
B
R
G
Y
R
D
B
U
B
K
4
.
I
F
H
E
A
T
I
N
G
A
N
D
C
O
O
L
I
N
G
B
L
O
W
E
R
S
P
E
E
D
S
A
R
E
N
O
T
T
H
E
S
A
M
E
D
I
S
C
A
R
D
J
U
M
P
E
R
B
E
F
O
R
E
C
O
N
N
E
C
T
I
N
G
B
L
O
W
E
R
L
E
A
D
S
.
U
N
U
S
E
D
B
L
O
W
E
R
L
E
A
D
S
M
U
S
T
B
E
P
L
A
C
E
D
O
N
"
P
A
R
K
"
T
E
R
M
I
N
A
L
S
O
F
I
N
T
E
G
R
A
T
E
D
C
O
N
T
R
O
L
O
R
T
A
P
E
D
.
3
.
I
F
A
N
Y
O
F
T
H
E
O
R
I
G
I
N
A
L
W
I
R
E
A
S
S
U
P
P
L
I
E
D
W
I
T
H
T
H
E
F
U
R
N
A
C
E
M
U
S
T
B
E
R
E
P
L
A
C
E
D
,
I
T
M
U
S
T
B
E
R
E
P
L
A
C
E
D
W
I
T
H
W
I
R
I
N
G
M
A
T
E
R
I
A
L
H
A
V
I
N
G
A
T
E
M
P
E
R
A
T
U
R
E
T
E
R
M
I
N
A
L
S
W
I
T
C
H
(
P
R
E
S
S
.
)
5
.
U
N
I
T
M
U
S
T
B
E
P
E
R
M
A
N
E
N
T
L
Y
G
R
O
U
N
D
E
D
A
N
D
C
O
N
F
O
R
M
T
O
N
.
E
.
C
.
A
N
D
L
O
C
A
L
C
O
D
E
S
.
P
K
P
I
N
K
1
1
5
V
A
C
H
O
T
A
N
D
P
A
R
K
T
E
R
M
I
N
A
L
S
L
I
N
E
-
H
F
L
A
M
E
S
E
N
S
O
R
F
R
O
N
T
C
O
V
E
R
P
R
E
S
S
U
R
E
S
W
I
T
C
H
(
S
I
N
G
L
E
C
O
N
T
R
O
L
O
N
4
5
K
B
T
U
)
N
O
C
G
Y
B
K
P
L
U
G
C
O
N
N
E
C
T
I
O
N
F
I
E
L
D
S
P
L
I
C
E
S
W
I
T
C
H
(
T
E
M
P
.
)
O
R
2
4
V
T
H
E
R
M
O
S
T
A
T
C
O
N
N
E
C
T
I
O
N
S
BU
G
N
G
N
D
1
1
5
V
A
C
2
4
V
A
C
B
L
O
W
E
R
C
O
M
P
A
R
T
M
E
N
T
D
O
O
R
S
W
I
T
C
H
(
O
P
E
N
W
H
E
N
D
O
O
R
O
P
E
N
)
D
O
O
R
S
W
I
T
C
H
B
K
G
N
D
DI SCONNECT
L
N
W
H
J
U
N
C
T
I
O
N
B
O
X
1
O
R
I
D
B
L
O
W
E
R
P
R
E
S
S
U
R
E
S
W
I
T
C
H
H
E
A
T
-
H
G
N
D
W
H
R
D
W
H
G
N
D
B
U
R
N
E
R
C
O
M
P
A
R
T
M
E
N
T
B
L
O
W
E
R
C
O
M
P
A
R
T
M
E
N
T
N
O
T
E
4
S
E
E
N
O
C
O
O
L
-
H
B
K
(
H
I
)
B
R
B
R
C
A
P
A
C
I
T
O
R
Y
L
W
H
Y
L
C
O
N
T
R
O
L
P
R
I
M
A
R
Y
L
I
M
I
T
A
U
T
O
R
E
S
E
T
B
U
V
T
M
A
N
U
A
L
R
E
S
E
T
R
O
L
L
O
U
T
L
I
M
I
T
C
O
N
T
R
O
L
(
S
)
R
D
O
R
P
K
B
K
W
H
W
H
B
L
O
W
E
R
I
N
D
U
C
E
D
D
R
A
F
T
M
A
N
U
A
L
R
E
S
E
T
A
U
X
I
L
I
A
R
Y
L
I
M
I
T
S
(
1
)
I
N
U
P
F
L
O
W
B
L
O
W
E
R
D
E
C
K
(
2
)
I
N
C
'
F
L
O
W
B
L
O
W
E
R
H
O
U
S
I
N
G
C
CIRCULATOR
BLOWER
F
P
(
2
)
L
I
M
I
T
C
O
N
T
R
O
L
S
M
A
N
U
A
L
R
E
S
E
T
A
U
X
I
L
I
A
R
Y
H
E
A
T
C
O
O
L
H
U
M
-
N
I
G
N
I
T
E
R
H
O
T
S
U
R
F
A
C
E
X
F
M
R
-
N
I
N
D
H
U
M
-
H
I
G
N
C
O
O
L
-
H
C
I
R
-
N
H
E
A
T
-
H
E
A
C
-
N
E
A
C
-
H
B
L
W
R
C
I
R
C
U
L
A
T
O
R
B
L
W
R
I
D
H
U
M
I
D
I
F
I
E
R
F
L
A
M
E
S
E
N
S
O
R
1
1
5
V
A
C
T
R
A
N
S
F
O
R
M
E
R
4
0
V
A
2
4
V
A
C
G
N
D
C
O
N
T
R
O
L
L
I
M
I
T
P
R
I
M
A
R
Y
A
U
T
O
R
E
S
E
T
(
S
I
N
G
L
E
C
O
N
T
R
O
L
O
N
4
5
K
B
T
U
)
L
I
M
I
T
C
O
N
T
R
O
L
(
S
)
M
A
N
U
A
L
R
E
S
E
T
R
O
L
L
O
U
T
R
O
1
(
5
)
R
O
2
(
1
1
)
H
L
O
(
1
)
H
L
I
(
7
)
M
V
C
(
9
)
G
N
D
(
8
)
T
R
(
6
)
OR
WH
WH
BU
YL
OR
RD
GN
BR
VT
P
K
PK
GY
W
H
CONNECTOR
9 CIRCUIT
115 VAC NEUTRAL
V
T
BK
BK
B
K
G
Y
24V THERMOSTAT CONNECTIONS
M
I
C
R
O
T
O
C
G
Y
W
R
T
R
A
N
S
F
O
R
M
E
R
4
0
V
A
2
W
H
O
R
B
U
Y
L
O
R
O
R
G
Y
P
K
R
D
O
R
G
Y
W
H
L
I
N
E
-
N
X
F
M
R
-
N
XFMR-H
TERMINALS
C
I
R
C
-
N
B
U
G
Y
G
N
B
R
1
2
3
1
2
1
1
1
0
9
8
7
6
5
4
W
A
R
N
I
N
G
:
R
A
T
I
N
G
O
F
A
T
L
E
A
S
T
1
0
5
°
C
.
U
S
E
C
O
P
P
E
R
C
O
N
D
U
C
T
O
R
S
O
N
L
Y
.
2
4
V
A
C
H
U
M
I
D
I
F
I
E
R
2
4
V
A
C
H
U
M
I
D
I
F
I
E
R
H
U
M
I
D
I
F
I
E
R
P
S
O
(
4
)
M
V
(
1
2
)
P
S
(
1
0
)
C
N
O
C
N
O
F
R
O
N
T
C
O
V
E
R
P
R
E
S
S
U
R
E
S
W
I
T
C
H
I
D
B
L
O
W
E
R
P
R
E
S
S
U
R
E
S
W
I
T
C
H
0
C
7
6
5
4
3
2
1
O
F
F
=
C
O
N
T
R
O
L
F
A
I
L
U
R
E
S
T
E
A
D
Y
O
N
=
N
O
R
M
A
L
O
P
E
R
A
T
I
O
N
2
F
L
A
S
H
E
S
=
P
R
E
S
S
U
R
E
S
W
I
T
C
H
S
T
U
C
K
C
L
O
S
E
D
3
F
L
A
S
H
E
S
=
P
R
E
S
S
U
R
E
S
W
I
T
C
H
S
T
U
C
K
O
P
E
N
4
F
L
A
S
H
E
S
=
O
P
E
N
H
I
G
H
L
I
M
I
T
5
F
L
A
S
H
E
S
=
F
L
A
M
E
S
E
N
S
E
W
I
T
H
O
U
T
G
A
S
V
A
L
V
E
7
F
L
A
S
H
E
S
=
L
O
W
F
L
A
M
E
S
I
G
N
A
L
C
O
N
T
I
N
U
O
U
S
/
R
A
P
I
D
F
L
A
S
H
E
S
=
R
E
V
E
R
S
E
D
1
1
5
V
A
C
P
O
L
A
R
I
T
Y
1
8
0
B
L
O
W
E
R
H
E
A
T
D
I
P
S
W
I
T
C
H
E
S
*
1
5
0
9
0
O
F
F
D
E
L
A
Y
S
E
L
E
C
T
O
R
*
1
2
0
A
S
S
H
I
P
P
E
D
F
R
O
M
F
A
C
T
O
R
Y
O
N
C
O
N
T
R
O
L
(
S
E
C
O
N
D
S
)
M
O
D
U
L
E
O
F
F
O
N
O
N
O
F
F
O
F
F
O
F
F
O
N
I
N
T
E
G
R
A
T
E
D
F
U
S
E
R
C
O
O
L
-
H
Y
T
W
I
N

Table of Contents

Related product manuals