EasyManua.ls Logo

Goodman MBE2000 - Encoded Thermostat Wiring: GMC Thermostat Integration; Encoded Two-Stage Cooling with GMC Thermostat

Goodman MBE2000
27 pages
Print Icon
To Next Page IconTo Next Page
To Next Page IconTo Next Page
To Previous Page IconTo Previous Page
To Previous Page IconTo Previous Page
Loading...
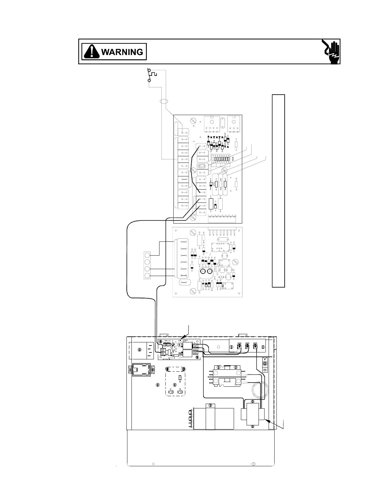
WIRING DIAGRAMS
25
HIGH VOLTAGE!
DISCONNECT ALL POWER BEFORE SERVICING OR INSTALLING THIS
UNIT. MULTIPLE POWER SOURCES MAY BE PRESENT. FAILURE TO
DO SO MAY CAUSE PROPERTY DAMAGE, PERSONAL INJURY OR DEATH.
Wiring is subject to change. Always refer to the wiring diagram on the unit for the most up-to-date wiring.
Encoded Two-Stage Cooling with GMC Thermostat Part # CHET18-60
(TSTWK01 Kit Required)
ENCODED THERMOSTAT
CR3
C5
Q2
K3
CR12
CR13
R5
CR14
ZD2
ZD3
R6
R7
R4
CR6
CR7
Q1
CR2
R2
CR8
ZD1
CR9
CR4
CR5
R3
R8
C2
C3
R1
CR1
CR11
LED2
K2
C4
K1
C1
P1
GOODMAN MFG. CO. L.P.
TEST
NOTES:
1.) STAT OPENS ON HUMIDITY RISE
2.) DIP SWITCH #4 MUST BE IN THE ON POSITION
S1 S2 S3
R
J1
R1
R3
CR10
R2
CR9
PJ6
PJ2
PJ4
OT1
OT2
HUM
12345678
PLEASE REFER
TO MANUAL
FOR PROPER
DIP SWITCH
CONFIGURATION.
W1 W2
R
YCON COM
O
W2 ED
S
WI
TC
H
DI
P
O
N
O
FF
24 VAC
C
R
Y1
W2W1
OUTDOOR
HEATPUMP
CONDENSER
DS1
CR1
CR2
CR5
CR6
CR7
CR8
CR3
CR11
J2 J3
1
4
C2
1
5
Y1RCGY/Y2OT2 HUM
HUMIDISTAT
OT1
OTCW/W2E\W1
THERMOSTATS
GOODMAN MFG. CO. L.P.
HUMIDISTAT
(OPTIONAL)
SEE NOTE 1
CUT HUM PJ6 FOR HUMIDISTAT OPERATION
2ND STAGE HEATER
CUT OT2 PJ2 FOR THIS CONFIGURATION
1ST STAGE HEATER
ENCODED 2 SPD COOLING - WITH 1 OR 2 STG HEAT
RSG
REMOTE
CONDENSING
UNIT
T2 T1
L2
L1
CHF
4
52
13
R2
R1
Y2
Y1
C/X
YL O/Y1
Y/Y2
PWR Y2 Y1
C Y
24 V
230 V
TSTWK01
TRANSFORMER
TSTWK01
BOARD
TO Y ON
TSTWK01 BOARD
TO COMMON ON
TSTWK01 BOARD
CHET 18-60
ENCODED
THERMOSTAT
S1 S2 S3 G Com R

Other manuals for Goodman MBE2000

Related product manuals