EasyManua.ls Logo

Goodman PC50 - Schematic Wiring Diagrams

Goodman PC50
8 pages
Print Icon
To Next Page IconTo Next Page
To Next Page IconTo Next Page
To Previous Page IconTo Previous Page
To Previous Page IconTo Previous Page
Loading...
P
RODUCT
S
PECIFICATIONS
SS-PC50 www.goodmanmfg.com 7
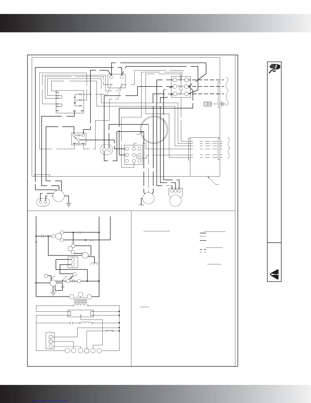
SCHEMATIC WIRING DIAGRAMS
380-415/3/50 0140G00588 REV. A
CO
MPONENT LEGEND
C
CH
CM
COMP
ECON
EBTD
R
EM
EMR
FC
GND
LVJB
PLF
RCCF
TR
CONTACTOR
CRANKCASE HEATER
CONDENSER MOTOR
COMPRESSOR
ECONOMIZER
ELECTRONIC BLOWER TIME DELAY
RELAY
EVAPORATOR MOTOR
EVAPORATOR MOTOR RELAY
FAN CAPACITOR
EQUPIMENT GROUND
LOW VOLTAGE JUNCTION BOX
FEMALE PLUG / CONNECTOR
RUN CAPACITOR FOR
COMPRESSOR AND FAN
TRANSFORMER
W
IRE CODE
BK BLACK
BL BLUE
BR BROWN
GR GREEN
OR ORANGE
PU PURPLE
RD RED
WH WHITE
YL YELLOW
F
ACTORY WIRING
LINE VOLTAGE
LOW VOLTAGE
OPTINAL HIGH
VOLTAGE
FIELD WIRING
HIGH VOLTAGE
LOW VOLTAGE
SEE UNIT RATING PLATE FOR TYPE AND SIZE
OF OVER CURRENT PROTECTION
WH
3
CONTROL
480
BR
FC
BR
BK
GR
BOX
K1
K1
M1
NOTE #2
XFMR-C
PU
SPEED
C
BL
XFMR-R
R
G
EBTDR
GR
COM
NC
RD
NO
RD
24V
BL
TR
C
BK
1
PU
COMP
CM
BR
BR
PU
4
1
PLF 1
PU
BK
YL
T3
BK
RD
BK
5
6
2
3
BUSHING
T1
T2
RD
BL
BR
WH
GR
YL
R
C
W2
W1
G
Y
A
T
O
T
S
M
R
E
H
T
T2
T1
RD
PU
BL
L1
GND
C
L2
PU
BK
5
0
/
/
3
-
2 SPEED
EM
M2
UP
7
8
9
PU
BL
BR
WH
RD
RD
BK
BK
RD
YL
BK
GR
RD
++
SEE
NOTE #3
BK
BK
RCCF
C
F
BR
BL
RD
RD
T3
L3
BL
BL
PU
3
8
0
4
1
5
BK
BK
RD
RD
BL
BL
RD
YL
3
2
1
EMR
FC
NOTE#2
EM
M1
1
TR
24V
3
CMR
2
380-415/3/50
SUPPLY VOLTAGE
C
COMP
T1
T3
T1
T2
L1
C
F
RCCF
CM
T3
C
L3
EBTDR
R
G
C
EBTDR
13
2
THERMOSTAT
R W2 W1
G C
P
L
F
1
6
5
4
C
2
3
P
L
F
1
L2
T2
C
Y
P
L
F
1
EMREBTDR
NOTES:
1. REPLACEMENT WIRE MUST BE SAME SIZE AND TYPE INSULATION AS
ORIGINAL (AT LEAST 105°C) USE COPPER CONDUCTOR ONLY.
2. TO CHANGE EVAPORATOR MOTOR SPEED REPLACE LEAD ON EMR
"1" WITH LEAD ON EBTDR "M1" OR "M2"
3. USE COPPER CONDUCTORS ONLY
++ USE N.E.C. CLASS 2 WIRE
Wiring is subject to change. Always re-
fer to the wiring diagram on the unit for
the most up-to-date wiring
WARNING
High Voltage: Disconnect all power before servicing or installing this unit. Multiple power sources
may be present. Failure to do so may cause property damage, personal injury, or death.

Related product manuals