EasyManua.ls Logo

Grant Combi 70 V3 - Boiler Dimensions for Combi V3 and Combi Max; Water Schematic for Combi V3 and Combi Max

Grant Combi 70 V3
64 pages
Print Icon
To Next Page IconTo Next Page
To Next Page IconTo Next Page
To Previous Page IconTo Previous Page
To Previous Page IconTo Previous Page
Loading...
Combi V3, Combi Max and Vortex Combi models
12
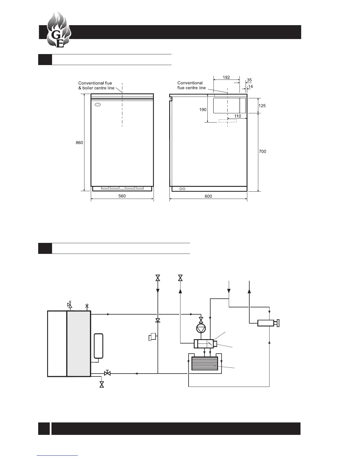
Fig. 2
Water schematic of boiler - Combi V3 and Combi Max
4.8
Mains
inlet
water
Domestic
hot
water out
Blending
valve
Flow
switch
3-way
diverter
valve
Domestic
hot water
heat exchanger
Pump
Automatic
air vent
Boiler
Heating
return
Heating
flow
Expansion
vessel
Primary
store
Pressure
relief valve
Drain
cock
Pressure
switch
Check
valve
Fig. 1
Note: Water connections may be from the rear, left or right hand side. If using side exit flue, it must be on the opposite
side to the water connections.
4 - BOILER TECHNICAL INFORMATION
Boiler dimensions - Combi V3 and Combi Max
4.7

Table of Contents

Related product manuals