EasyManua.ls Logo

Grant Combi 70 V3 - Tiger Loop System

Grant Combi 70 V3
64 pages
Print Icon
To Next Page IconTo Next Page
To Next Page IconTo Next Page
To Previous Page IconTo Previous Page
To Previous Page IconTo Previous Page
Loading...
Combi V3, Combi Max and Vortex Combi models
18
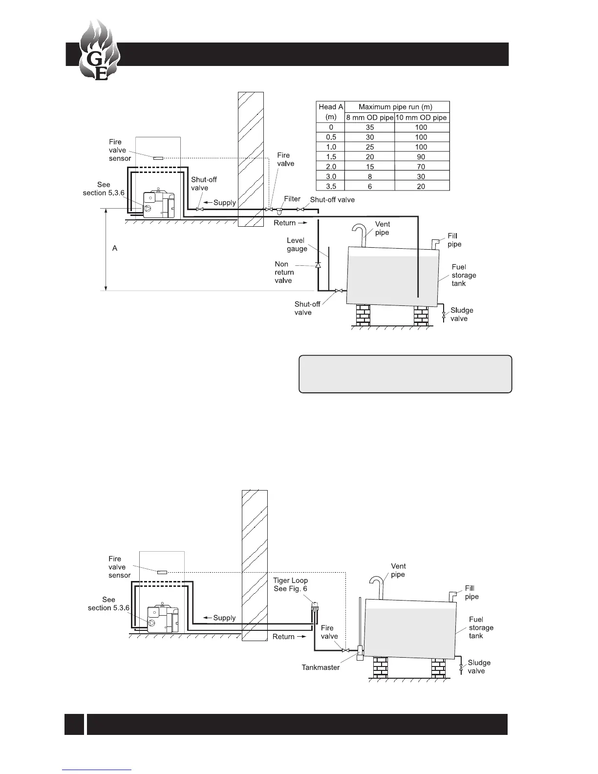
5.3.5 Tiger Loop system - (See Figs. 7 and 8)
1 When the storage tank is below the burner, an
alternative to a two pipe system can be achieved using
the Tiger Loop oil deaerator. This effectively removes
the air from the oil supply on a single pipe lift.
2 The Tiger Loop is connected close to the boiler as
a two pipe system (omitting the non-return valve)
as shown in Fig. 7. Refer to the manufacturers
instructions supplied with the Tiger Loop. The
Tiger Loop must be mounted vertically.
5 - GENERAL BOILER INFORMATION
Note: To prevent any possibility of fuel fumes
entering the building, the Tiger Loop must be
fitted outside.
3 To be used with a Tiger Loop system, the burner
must be fitted with an additional flexible fuel line
(a flexible fuel line (600 mm) and
3
/
8
" to
1
/
4
" BSP
male adaptor are available to purchase from Grant
Engineering (UK) Limited - Part No. RBS104).
See Section 5.3.6.
Fig. 6 - Two pipe system
Fig. 7 - Tiger loop system

Table of Contents

Related product manuals