EasyManua.ls Logo

Gravely V-TWIN - Technical and Consumer Information - Identification; Engine Model & Serial Numbering

Gravely V-TWIN
31 pages
Print Icon
To Next Page IconTo Next Page
To Next Page IconTo Next Page
To Previous Page IconTo Previous Page
To Previous Page IconTo Previous Page
Loading...
Engine Manual 23
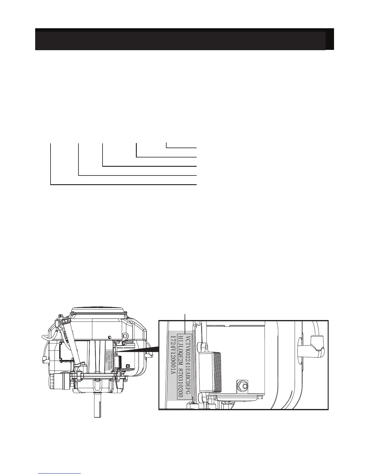
ENGINE MODEL NUMBER & SERIAL NUMBERING SYSTEM
The rst two lines of an engine’s number is the model number. It is alphanumeric
and engraved on the side of the block to the right of the recoil. The third line is
alphanumeric and is also the serial number.
Engine Serial Number Sequence
18 24V 03 00001 A
Example:
Engine Serial Number 1824V0300001A represents:
18: 2018
24V: Vertical Engine Series
03: March
00001: 1st Engine Produced During Month of March
A: Vertical Assembly Line
Assembly Line Designation
Sequential Engine Number
Produced Month
Engine Series Designation
Produced Year
X. Technical & Consumer Information CONTINUED
Model
Number