EasyManua.ls Logo

Gree Fresh Air Series

Gree Fresh Air Series
30 pages
To Next Page IconTo Next Page
To Next Page IconTo Next Page
To Previous Page IconTo Previous Page
To Previous Page IconTo Previous Page
Loading...
Multi Variable Air Conditioners Fresh Air Series Indoor Unit
7
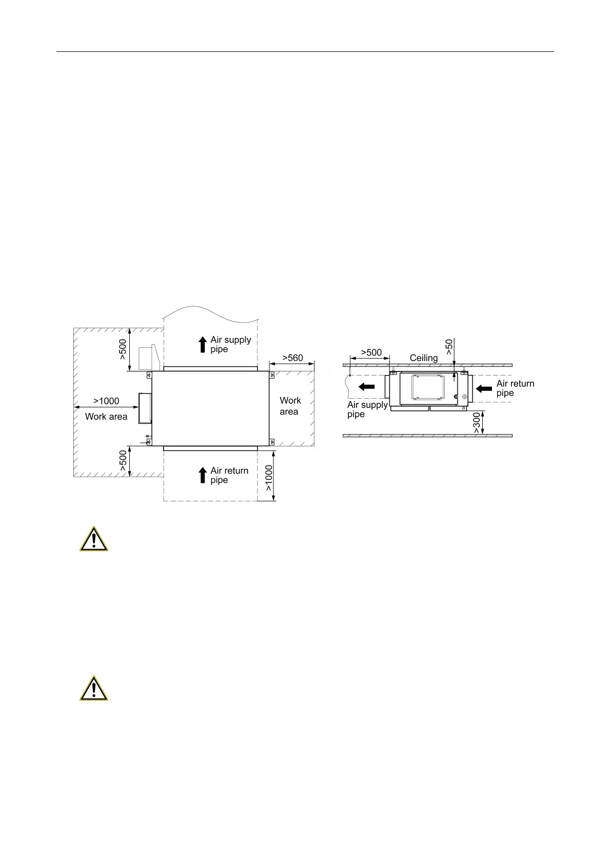
3.2 Location for Installation
(1) Appliances are not accessible to the general public.
(2) The top holder must be strong enough to support unit's weight.
(3) Drain pipe can drain water out easily.
(4) There is no obstacle at inlet or outlet. Please ensure good air circulation.
(5) In order to make sure the space for maintenance, please install the indoor unit according to the
dimension described below.
(6) Keep the unit away from heat source, inflammable gas or smoke.
(7) This is a concealed ceiling type unit.
(8) Indoor unit, outdoor unit, power cord and electric wire should stay at least 1m from the TV set
and radio. Otherwise, these electric appliances may have image interference and noise. (Even
if the distance is 1m, when there is strong electric wave, noise may still occur.)
Unit: mm
Fig 3.2.1
Note:
Installation of the unit must be in accordance with National Electric Codes and local safety
regulations.
Improper installation will affect unit’s performance, so do not install the unit by yourself. Please
contact local dealer to arrange professional technicians for the installation.
Do not connect power until all installation work is finished.
3.3 Requirements for Communication Line
Note:
If the unit is installed in the place with strong electromagnetic interference, shielded
wire must be applied on the communication wire between indoor unit and wired controller. Twisted pair
line with shielding function must be applied on the communication wire between indoor unit and indoor
unit (outdoor unit).

Related product manuals