EasyManua.ls Logo

Gree GMV-120WL/C-X

Gree GMV-120WL/C-X
173 pages
To Next Page IconTo Next Page
To Next Page IconTo Next Page
To Previous Page IconTo Previous Page
To Previous Page IconTo Previous Page
Loading...
GREE DC Inverter Multi VRF System II Service Manual
10
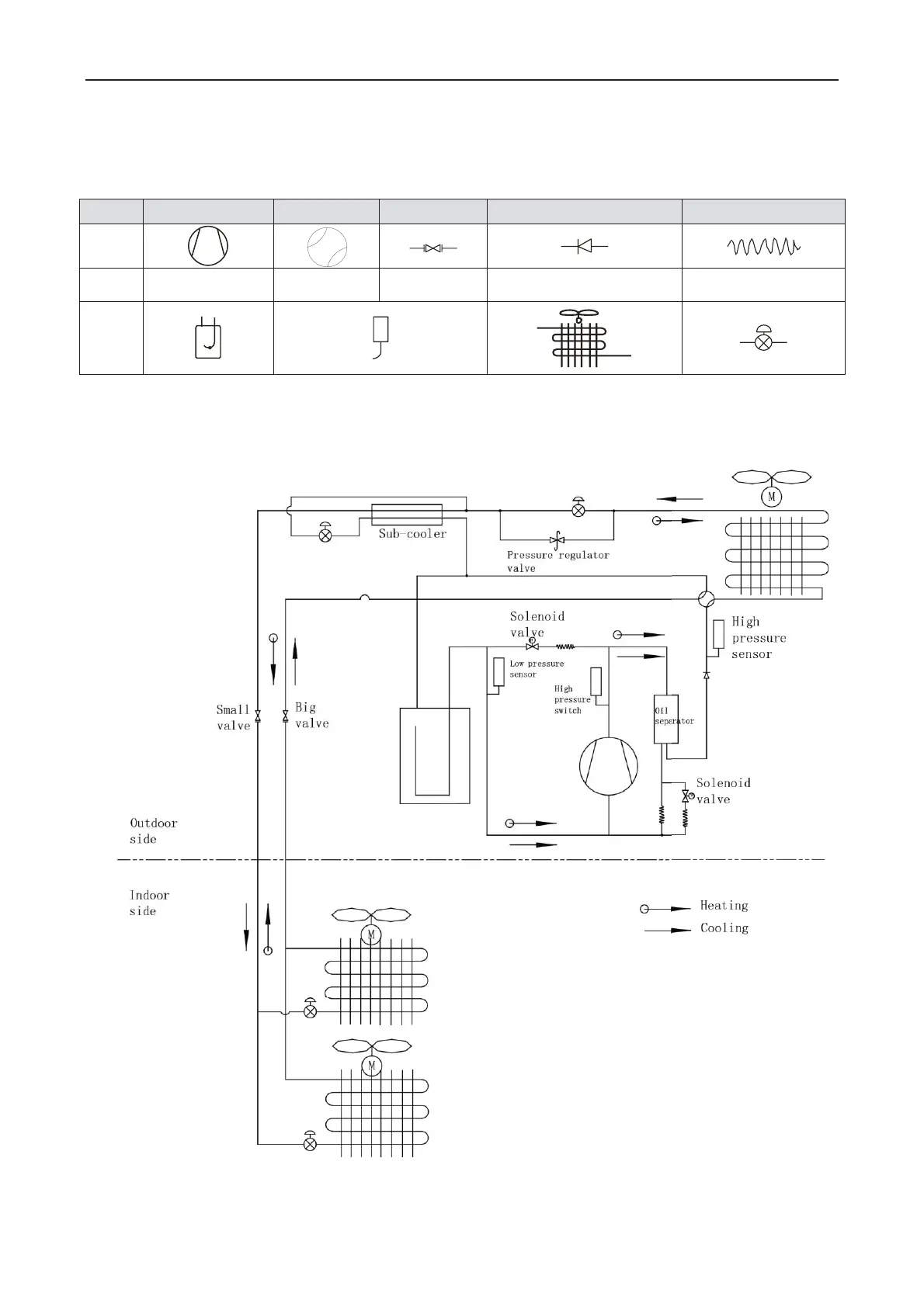
6 Principal of Operation
Components in flowcharts are presented according to the following table:
GMV-80WL/A-T GMV-100WL/A-T GMV-121WL/A-T GMV-120WL/C-T GMV-140WL/C-T
GMV-160WL/C-T GMV-120WL/C-X GMV-140WL/C-X GMV-160WL/C-X
GMV-H280WL/A-X GMV-H335WL/A-X GMV-280WL/C-X GMV-335WL/C-X
Name
Compressor
4-way valve
Cut-off valve
One-way valve
Capillary tube
Symbol
Name
Gas-liquid
separator
Pressure
switch
Pressure
sensor
Axial-flow finned heat
exchanger
Electronic expansion
valve
Symbol

Table of Contents

Related product manuals