EasyManua.ls Logo

Gree GMV-120WL/C-X

Gree GMV-120WL/C-X
173 pages
To Next Page IconTo Next Page
To Next Page IconTo Next Page
To Previous Page IconTo Previous Page
To Previous Page IconTo Previous Page
Loading...
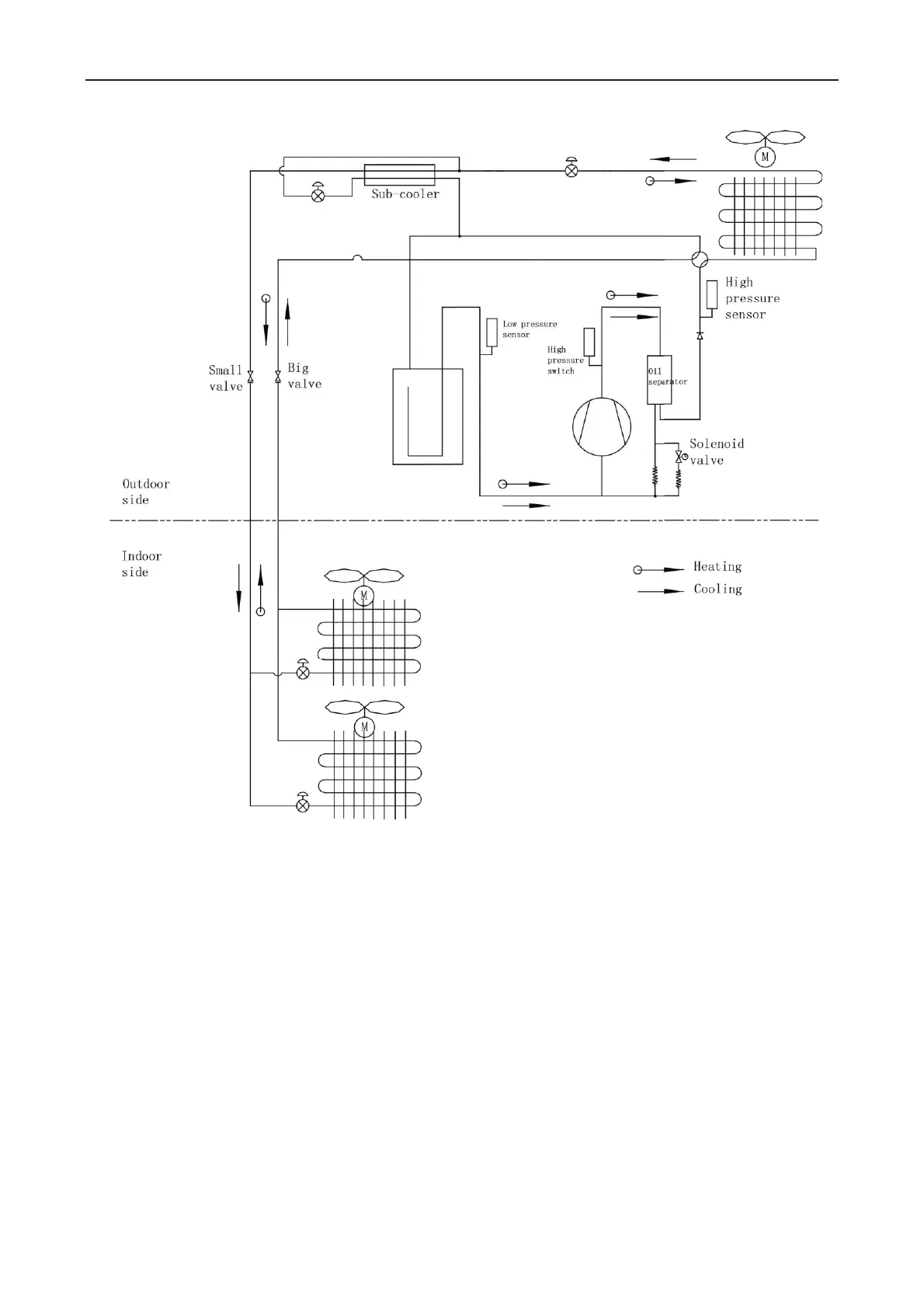
GREE DC Inverter Multi VRF System II Service Manual
12
GMV-141WL/C-T

Table of Contents

Related product manuals