EasyManua.ls Logo

Gree GMV-280WM/E1-X - Allowable Pipe Length and Drop Height Among Indoor and Outdoor Units

Gree GMV-280WM/E1-X
308 pages
To Next Page IconTo Next Page
To Next Page IconTo Next Page
To Previous Page IconTo Previous Page
To Previous Page IconTo Previous Page
Loading...
GREE GMV5E DC INVERTER VRF UNITS SERVICE MANUAL
39
GMV-335WM/E-X, GMV-400WM/E-X and GMV-450WM/E1-X
GMV-450WM/E-X, GMV-504WM/E-X, GMV-560WM/E-X and GMV-615WM/E-X
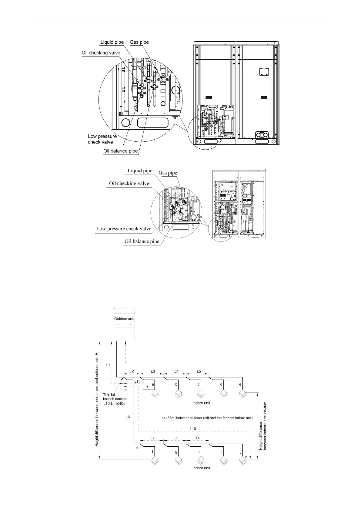
5.3 Allowable pipe length and drop height among indoor and
outdoor units
Y type branch joint is adopted to connected indoor and outdoor units. Connecting method is shown
in the figure below
Remark Equivalent length of one Y-type manifold is about 0.5m.

Table of Contents

Other manuals for Gree GMV-280WM/E1-X

Related product manuals