EasyManua.ls Logo

Gree GMV-615WM/G-X - Page 212

Gree GMV-615WM/G-X
305 pages
To Next Page IconTo Next Page
To Next Page IconTo Next Page
To Previous Page IconTo Previous Page
To Previous Page IconTo Previous Page
Loading...
Gree GMV6 DC Inverter VRF Units Service Manual
210
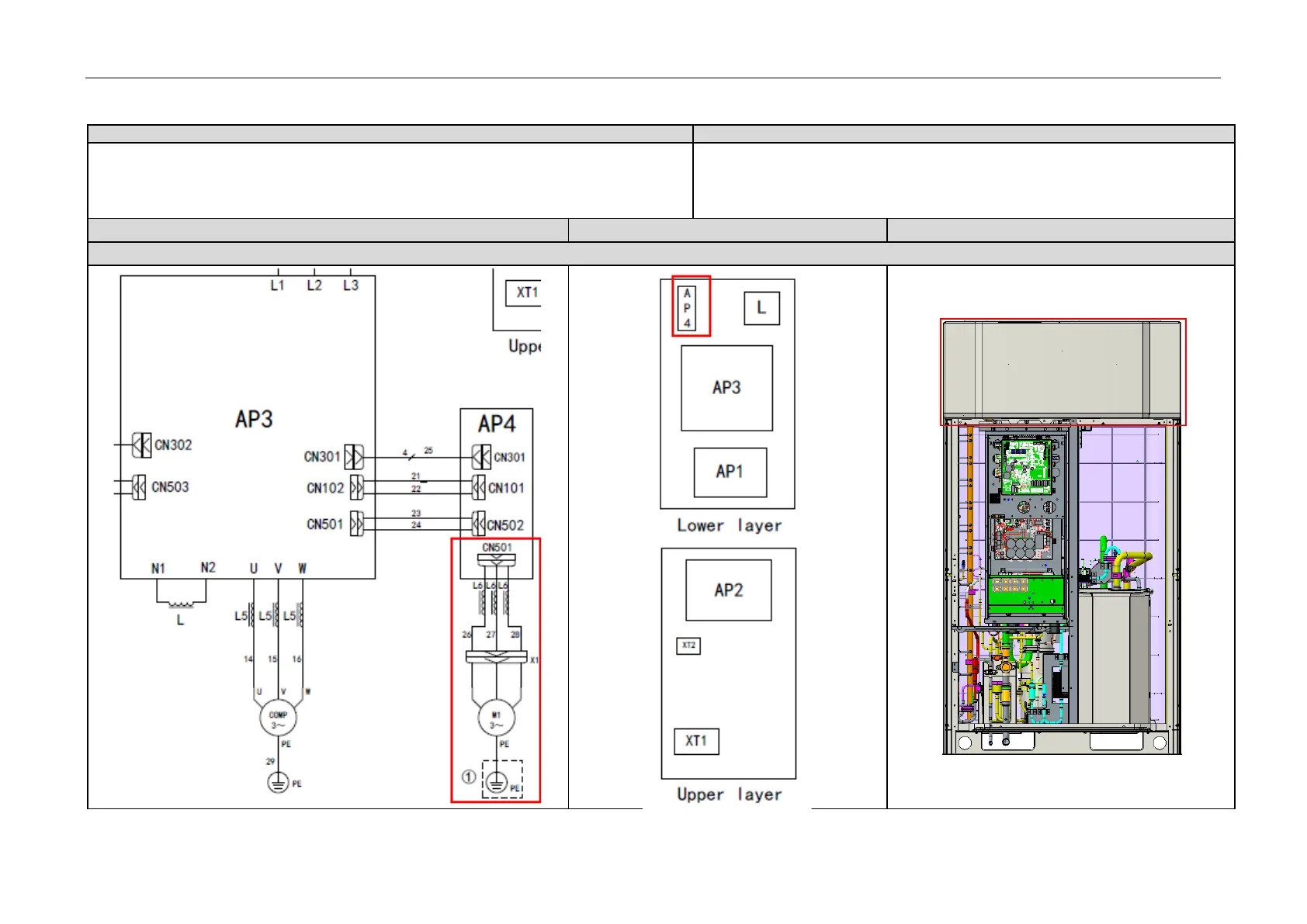
4.5 Fans
Specifications
Description
The unit of 8HP-12HP is equipped with one fan, while the unit of 14HP-24HP is equipped with
two fans. The fans are connected to the fan drive board by a group of three power cables.
The fans are powered by a DC inverter motor and can adjust the speed automatically
according to the environmental temperature and load, thus adapting to the demand of
the unit operation.
Circuit diagram Layout of electrical appliance box Physical position
Models: GMV-224WM/G-X, GMV-280WM/G-X, GMV-335WM/G-X

Other manuals for Gree GMV-615WM/G-X

Related product manuals