EasyManua.ls Logo

Gree GMV-615WM/G-X

Gree GMV-615WM/G-X
305 pages
To Next Page IconTo Next Page
To Next Page IconTo Next Page
To Previous Page IconTo Previous Page
To Previous Page IconTo Previous Page
Loading...
Gree GMV6 DC Inverter VRF Units Service Manual
231
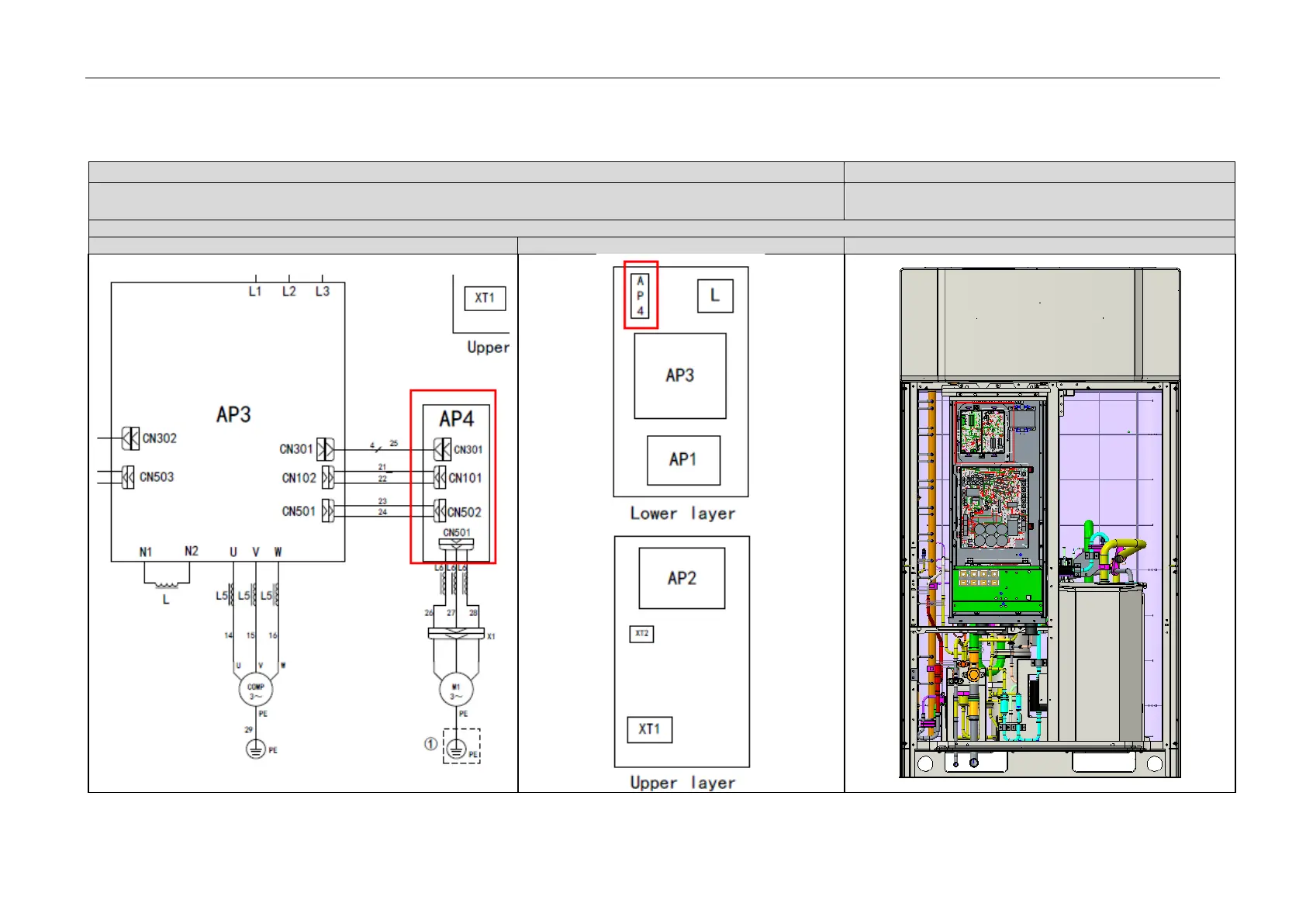
4.8 Fan Drive Board
The fan drive board is used to control the operation of the fan(s).
Specifications
Description
The compressor drive board is used to control the operation of
the compressor.
Models: GMV-224WM/G-X, GMV-280WM/G-X, GMV-335WM/G-X
Circuit diagram
Layout of electrical appliance box
Physical position

Other manuals for Gree GMV-615WM/G-X

Related product manuals