EasyManua.ls Logo

Gree GMV-ND140ZD/A-T

Gree GMV-ND140ZD/A-T
227 pages
To Next Page IconTo Next Page
To Next Page IconTo Next Page
To Previous Page IconTo Previous Page
To Previous Page IconTo Previous Page
Loading...
MULTI VRF- INDOOR UNIT SERVICE MANUAL EUROPEAN/LATIN AMETICA (R410A)
78
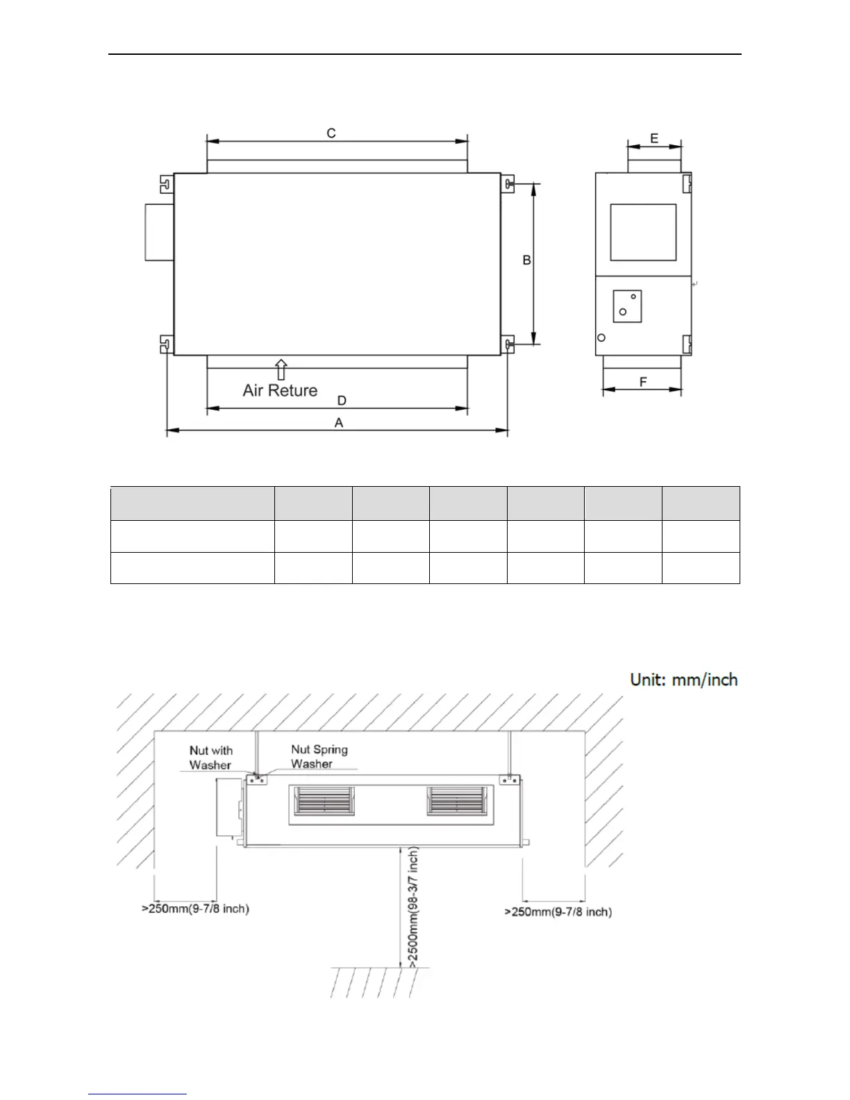
ModelGMV-ND224PH/A-TGMV-ND280PH/A-T
Below are dimensions of A, B, C, etc. for different models:
Unit: mm/inch
Model
A
B
C
D
E
F
GMV-ND224PH/A-T
1353
(53-1/4)
632
(24-7/8)
992
(39)
1150
(45-1/4)
192
(7-1/2)
327
(12-7/8)
GMV-ND280PH/A-T
1563
(61-1/8)
706
(27-3/4)
992
(39)
1350
(53-1/8)
192
(7-1/2)
402
(15-7/8)
3.2.2 Installation space
ModelGMV-ND56PHS/A-T~ GMV-ND160PHS/A-T
ModelGMV-ND224PH/A-TGMV-ND280PH/A-T

Table of Contents

Other manuals for Gree GMV-ND140ZD/A-T

Related product manuals