EasyManua.ls Logo

Gree GMV-ND28C/A-T - Page 82

Gree GMV-ND28C/A-T
227 pages
Print Icon
To Next Page IconTo Next Page
To Next Page IconTo Next Page
To Previous Page IconTo Previous Page
To Previous Page IconTo Previous Page
Loading...
MULTI VRF- INDOOR UNIT SERVICE MANUAL EUROPEAN/LATIN AMETICA (R410A)
78
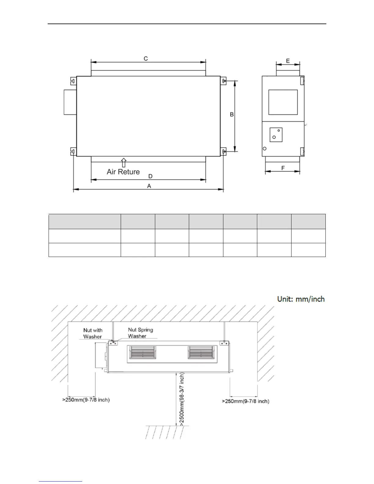
ModelGMV-ND224PH/A-TGMV-ND280PH/A-T
Below are dimensions of A, B, C, etc. for different models:
Unit: mm/inch
Model
A
B
C
D
E
F
GMV-ND224PH/A-T
1353
(53-1/4)
632
(24-7/8)
992
(39)
1150
(45-1/4)
192
(7-1/2)
327
(12-7/8)
GMV-ND280PH/A-T
1563
(61-1/8)
706
(27-3/4)
992
(39)
1350
(53-1/8)
192
(7-1/2)
402
(15-7/8)
3.2.2 Installation space
ModelGMV-ND56PHS/A-T~ GMV-ND160PHS/A-T
ModelGMV-ND224PH/A-TGMV-ND280PH/A-T

Table of Contents

Other manuals for Gree GMV-ND28C/A-T

Related product manuals