EasyManua.ls Logo

Gree GMV-ND28C/A-T - Page 97

Gree GMV-ND28C/A-T
227 pages
Print Icon
To Next Page IconTo Next Page
To Next Page IconTo Next Page
To Previous Page IconTo Previous Page
To Previous Page IconTo Previous Page
Loading...
MULTI VRF- INDOOR UNIT SERVICE MANUAL EUROPEAN/LATIN AMETICA (R410A)
93
GMV-NDX224P/A-TGMV-NDX280P/A-T
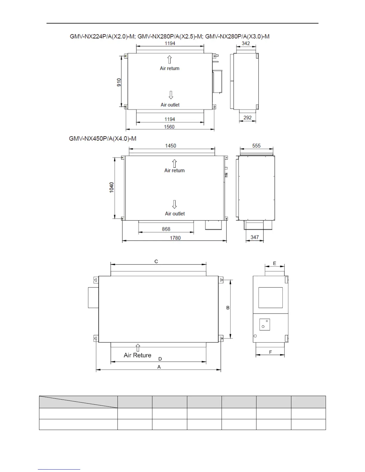
The table below lists the detailed dimensions.
Unit: mm
Item
Model
A
B
C
D
E
F
GMV-NDX224P/A-T
1353
632
992
1150
192
327
GMV-NDX280P/A-T
1353
632
992
1150
192
327

Table of Contents

Other manuals for Gree GMV-ND28C/A-T

Related product manuals