EasyManua.ls Logo

Gree NCHS8D - Page 15

Gree NCHS8D
39 pages
Print Icon
To Next Page IconTo Next Page
To Next Page IconTo Next Page
To Previous Page IconTo Previous Page
To Previous Page IconTo Previous Page
Loading...
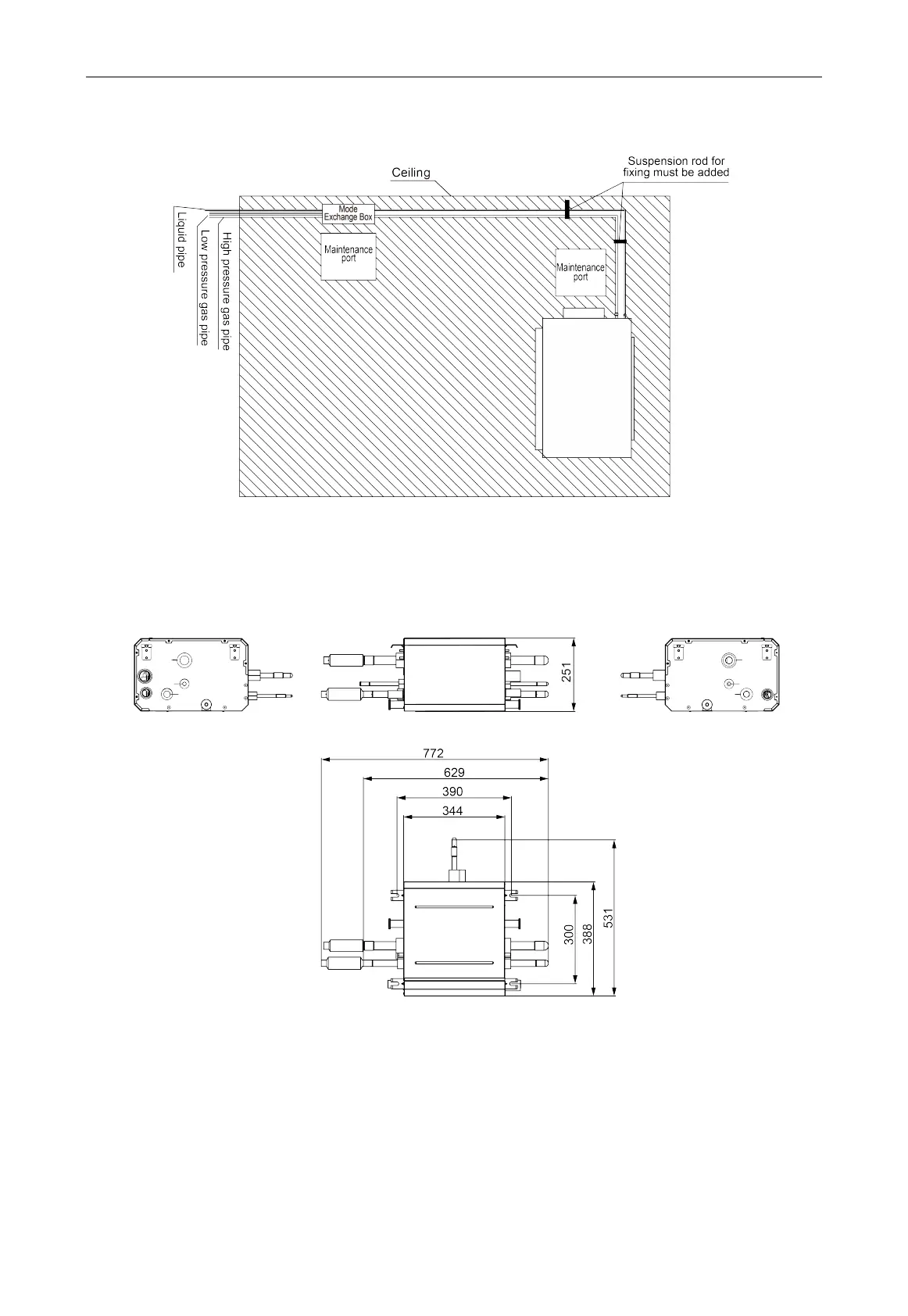
GMV6 HR Mode Exchange Box
11
Due to the structure of installation space, the Mode Exchange Box needs a maintenance port.
Please reserve another maintenance port for Mode Exchange Box.
Fig.4.1.4
NCHS1D outline and installation dimension:
Unit
mm
Fig.4.1.5

Related product manuals