EasyManua.ls Logo

Gree NCHS8D - Unit Suspension and Dimensions

Gree NCHS8D
39 pages
Print Icon
To Next Page IconTo Next Page
To Next Page IconTo Next Page
To Previous Page IconTo Previous Page
To Previous Page IconTo Previous Page
Loading...
GMV6 HR Mode Exchange Box
13
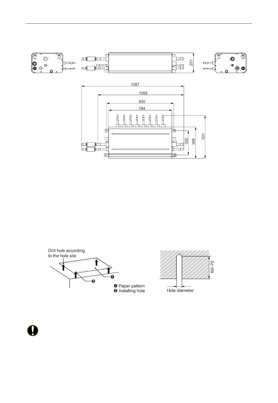
NCHS8D outline and installation dimension:
Unit
mm
Fig.4.1.8
4.1.2 Suspend the Mode Exchange Box
(1) Drill bolt holes and install bolts
1) Stick the installation template at the installation position flatly, drill 4 holes at the
installation position basing on the installation template. As shown in Fig.4.1.9. Please refer to the
diameter of expansion bolt for the diameter of hole with depth of 60-70mm. As shown in
Fig.4.1.10.
Unit
mm
Fig.4.1.9 Fig.4.1.10
2) Insert M10 expansion bolt into hole, and then set the iron nail into bolt. As shown in
Fig.4.1.11, and then remove the paper pattern.
NOTE!
The length of bolt should be selection according to the height of room. Bolt should be purchased
by the user.

Related product manuals