EasyManua.ls Logo

Grundig Aura - Circuit Diagrams and Layout of Pcbs; RF Part; Schaltpläne und Druckplattenabbildungen; HF-Teil

Grundig Aura
37 pages
Print Icon
To Next Page IconTo Next Page
To Next Page IconTo Next Page
To Previous Page IconTo Previous Page
To Previous Page IconTo Previous Page
Loading...
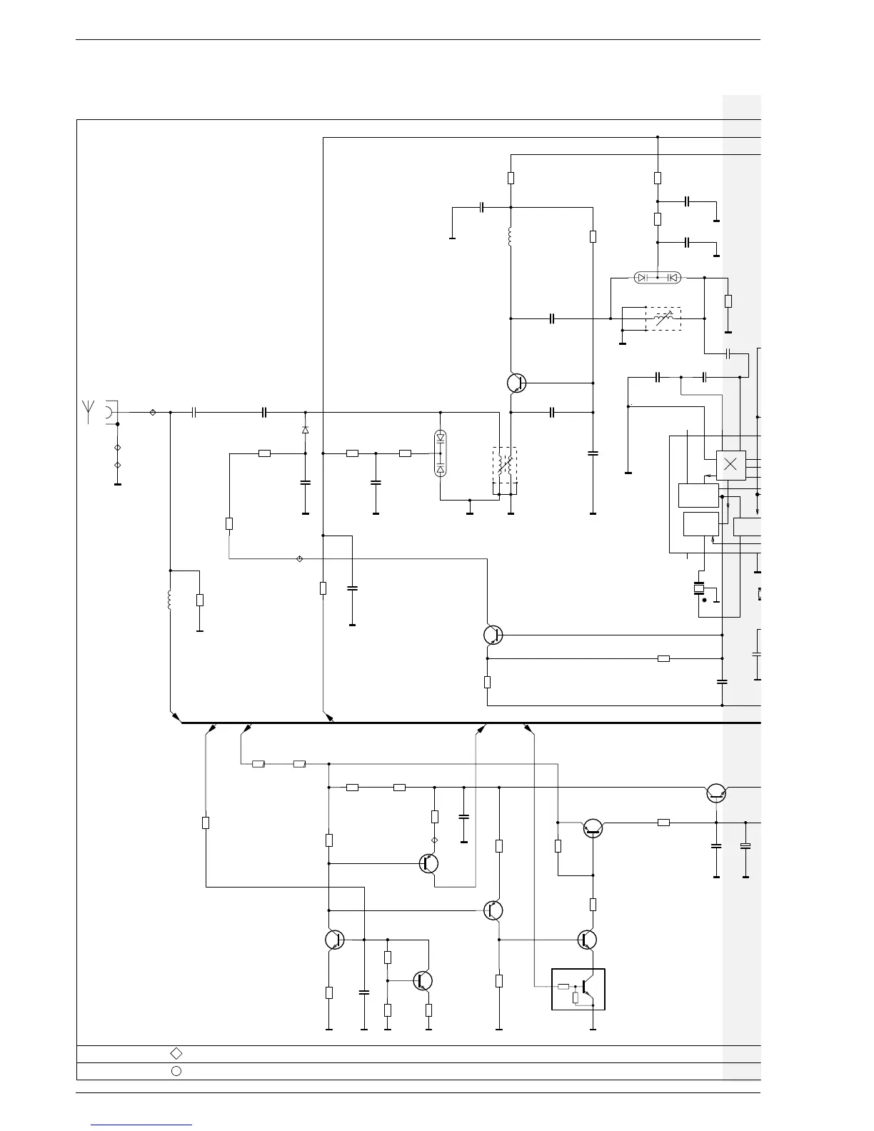
Schaltpläne und Druckplattenabbildungen / Circuit Diagrams and Layout of PCBs AURA
10 GRUNDIG Service
Schaltpläne und Druckplattenabbildungen / Circuit Diagrams and Layout of PCBs
HF-Teil / RF Part
3
2
1
8602-223-080
F02
31
F03V
805
27P
CC01
FMP02
603
CR2407P
10K
1206
CR2411P
4R7
603
CR11
470R
BC858C
CT2409P
603
CR16
56K
603
CR13
10K
603
CR14
47K
603
CC2401P
100N
BC848C
CT2406P
FMP01
603
CR12
47K
603
CR01
22R
603
CR08
10K
603
CR09
47K
603
CR33
330K
603
CR06
330K
603
CR2416P
1K0
47K
BCR135
10K CT2407P
603
CR2403P
10K
603
CR2404P
10K
603
CR2409P
10K
603
CC2403P
10N
805
CC07V
1N0
NP0
1206
CR2412P
4R7
BC848C
CT2411P
603
CR2406P
6K8
805
3P3
CC02V
603
CC42
FMP04
603
4P7
CC16
805
NP0
1N0
CC18
603
12P
CC19
805
NP0
1N0
CC24
603
6P8
CC23
805
NP0
1N0
CC22
805
NP0
1N0
CC04
805
NP0
1N0
CC08
805
NP0
1N0
CC12
603
100N
CC43
805
NP0
1N0
CC17
603
CR2413P
33K
FMP03
1
3
4
6
78
8140-533-904
L03
8325-325-805
BB804
CD03
BFR93AR
CT01
BC858C
CT2408P
BC368
T2401P
AN1
BC858C
CT2404P
BC848C
CT2412P
8140-516-057
2U2
CL01
603
CR03FQ
0R
BC858C
CT02
8325-795-392
BA779S
CD02
8325-325-805
BB804
CD04
8140-516-057
2U2
CL02
413
2
L04
8140-530-270
805
CR34
220R
U4065B
& IF
WIDE BAND
FERENCE
INTER-
MIXER
DETECT
O
IF &
MIXER
AGC
1716151413
12 11 10 9 8
8305-154-065
CIC01
+
10U/16V
C2402P
603
100N
CC2404P
603
CR2408P
33K
603
CR2415P
47K
FMP2401
603
CR2420P
47K
603
CR2414P
10K
603
CR2405P
3K9
603
CR07V
10R
0R
R2401P
0R
R2402P
805
CC13
27P
+A ANT-ONPHANTOM
AM-ANT
FM/AM-ABST
+S
ABGLEICHPUNKTE
MESSPUNKTE
ANT
240104
0302
01
M
H
SPA
108 MHz -> ca.6.5V
87.5MHz -> 1.6V
MISCHTEIL
MIXER SECTION
*
*
*
*
*
*
*
*
*
*
*
*
*
*
**
*
*
*
*
*
*
*
*
*
*
*
*
*
*
*
*
**
*
*
*
*
*
*
+9.2V
+14V

Related product manuals