EasyManua.ls Logo

Grundig Aura - Rds-Decoder

Grundig Aura
37 pages
Print Icon
To Next Page IconTo Next Page
To Next Page IconTo Next Page
To Previous Page IconTo Previous Page
To Previous Page IconTo Previous Page
Loading...
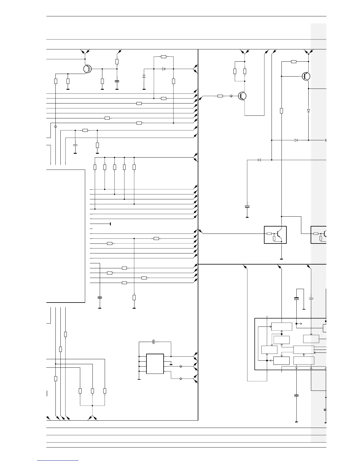
AURA Schaltpläne und Druckplattenabbildungen / Circuit Diagrams and Layout of PCBs
GRUNDIG Service 15
603
CR893D
47K
805
CC821D
220N
BAS16
CD1213BS
603
33k
CR886TM
47K
DTC144EK
47K
CT1211BS
603
CR1216BS
3K3
603
CR1214BS
1K0
47K
DTC144EK
47K
CT1209BS
BC808/40
CT1208BS
603
CR865JM
47K
603
CR870V
10K
805
CC824D
100N
603
1K0
CR889JM
FMP808
FMP807
FMP1201
FMP806
603
CR888S
1K0
603
CR887D
47K
603
1K0
CR883V
603
CR884JZ
1K0
603
22N
CC814
4
3
2
18
7
6
5
24C16
8305-958-016
CIC802
603
1K0
CR867
BAR42
CD811JM
BAR42
CD812JM
603
47K
CR845V
603
CR868T
0R
603
CR837V
47K
603
CR835DF
10K
603
CR830V
47K
603
CR825V
2K
603
CR861DF
1K0
603
CR858DF
1K0
603
CR859DR
1K0
603
CR857DR
1K0
603
CR852
1K0
603
CR853A
1K0
603
CC815JG
4N7
805
CR1211JB
470R
603
470R
+
1U0/50V
C1201BS
603
CR851V
1K0
603
CR860JG
10K
603
CR866JG
22K
5
44 43 42 41
40
39
38
37
36
35
34
33
32
31
30
29
28
27
26
25
24
23
22
21
20191817
6
P66/*WAIT
P65/*WR
P64/*RD
P27/*SCK0
P31/TO1
P30/TO0
P67/ASTB
P63
P62
P61
P60
P57/A15
P56/A14
VSS
P55/A13
P54/A12
P53/A11
P52/A10
P51/A9
P50/A8
P47/AD7
P46/AD6
P45/AD5
P44/AD4
P43/AD3
P42/AD2
P41/AD1
P40/AD0
P26/SOQ/SB1
P25/SI0/SB0
603
CR891D
47K
805
CR1212JB
470R
BC848C
CT1207JB
603
CR856
3K3
2
R1
603
CR838GH
100K
603
CR892D
47K
BC858C
CT802D
1N4004
D1201BS
1N4004
D1202BS
603
CR854
3K3
603
CR1209JB
4K7
AM-STOP
FM-STOP
LS-SHORT-R/TAG/NACHT
SCL
SCL
PAUSE
RELEASE
BERGER/+U/BEL
BERGER/+U/BEL
BEL-EXT
DA-OUT
T-MUTE
SCV-P
SWITCH
+A
+G
+G
ZUEND-P
BLINK-LED
CL-OUT
APF-MAGNET
-LS-CHECK-F
APF-ON
SDA
INKREM
+U
+U
EN-OUT/BEL-KEY
BEL-P
LS-SHORT-F
T-DIR
LS-OPEN
-LS-CHECK-R
BLINK
BLINK
MPX(RDS)MUTE
+5V
+5V
+5V
DOLBYOFF
CLIP-GND-R
BEEP
CLIP-GND-F
808
807806
STROMVERSORGUNG
-
POWER SUPPLY ILLUMIN
A
*
*
*
*
*
*
*
*
*
*
*
*
*
*
****
**
*
*
*
*
*
*
*
**
+
10U/16V
C506
CC507
100P
CC508
AND SYNC
REGENERATION
CLOCK
DEVIDER
OSZILLATOR
GENERATOR
BIT
QUALITY-
FIXED DIVIDER
VARIABLE AND
COSTAS LOOP
DECODER
SYMBOL
BIPHASE
FILTER
ALIASING
ANTI
DECODER
DIFFERENTIAL
RDCL T57 OSCO OSCI VDDD
VDDAMUXVREFRDDAQUAL
16 12131415
12345
8
3
CC504
330P
MPX2
RDS-DATA
RDS-CLK
DECODEUR RDS
RDS-DECODER
*
+5V
+5V
+14V
+14V
+14V

Related product manuals